Edificio residencial estacional original

74 m² de área total / 797 ft² 1 piso 2 dormitorios 1 baño
Edificio residencial estacional original
Click to view

Descripción

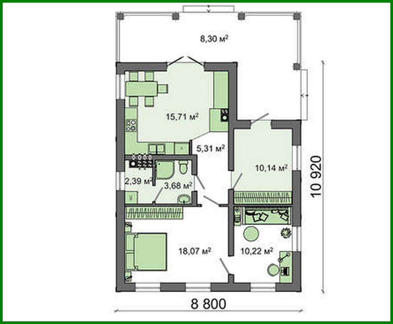
Original seasonal residential building Número de plantas: 1 Área total: 73.69 m2 Área habitable: 28.30 m2 Altura de la casa: 5.55 m Altura del techo: 2.75 m Ángulo del techo: 25 ° Área del techo: 134.00 m2 Número de dormitorios: 2 Número de baños: 1 Tamaño mínimo del terreno (largo): 17.00 m Tamaño mínimo del terreno (ancho): 19.00 m Área construida: 119.1 m2 Materiales: Paredes: aerated concrete blocks Techo: on wooden beams Roofing: metal Foundation: monolithic slab

¿Te interesa este plano?

Contáctanos para obtener los planos completos, un presupuesto de construcción o adaptar este diseño a tu terreno y necesidades.

Solicitar más información

Galería de visualizaciones