Proyecto de un elegante edificio residencial de dos plantas con un hermoso balcón

216 m² de área total / 2325 ft² 2 pisos 4 dormitorios 3 baños
Proyecto de un elegante edificio residencial de dos plantas con un hermoso balcón
Click to view

Descripción

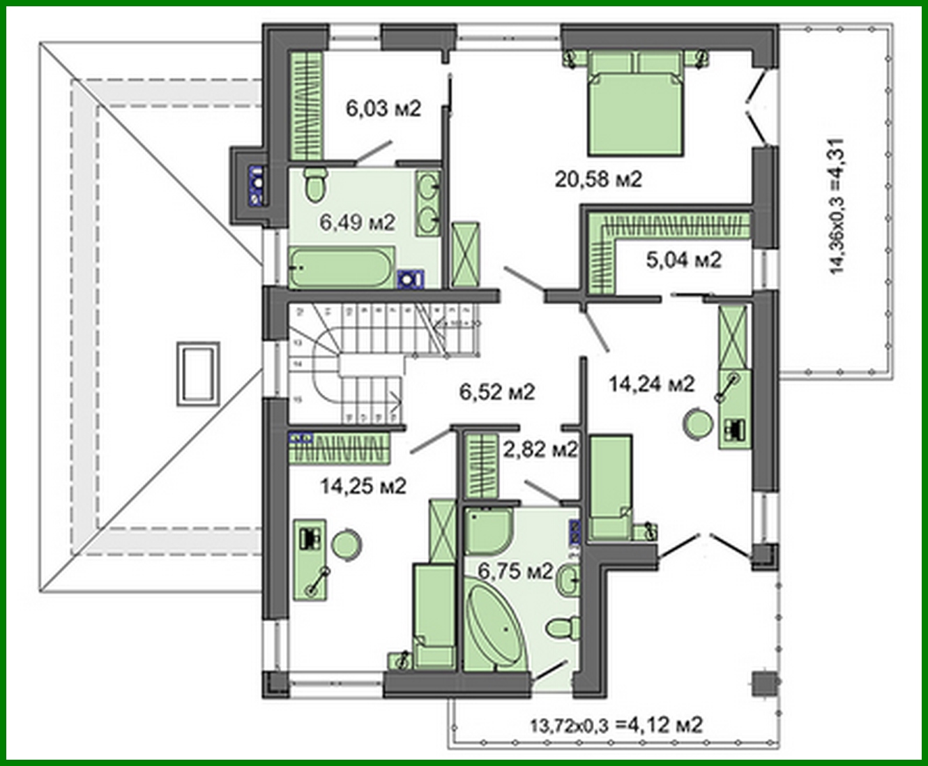
Project of a stylish two-story residential building with a beautiful balcony Número de plantas: 2 Área total: 216.00 m2 Área habitable: 108.00 m2 Altura de la casa: 9.24 m Altura del techo: 2.80 m Ángulo del techo: 24 ° Área del techo: 230.00 m2 Número de dormitorios: 4 Número de baños: 3 Garaje: Garage for one car Tamaño mínimo del terreno (largo): 19.00 m Tamaño mínimo del terreno (ancho): 18.00 m Área construida: 212 m2 Materiales: Paredes: ceramic blocks Overlap: monolithic overlap Roofing: metal tile, ceramic tile, bitumen Foundation: monolithic tape

¿Te interesa este plano?

Contáctanos para obtener los planos completos, un presupuesto de construcción o adaptar este diseño a tu terreno y necesidades.

Solicitar más información

Galería de visualizaciones