Proyecto de una acogedora casa de dos plantas con amplias verandas y terrazas

168 m² de área total / 1808 ft² 2 pisos 4 dormitorios 2 baños
Proyecto de una acogedora casa de dos plantas con amplias verandas y terrazas
Click to view

Descripción

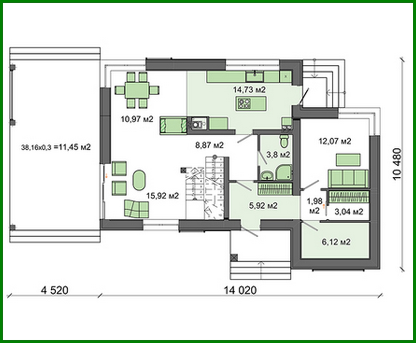
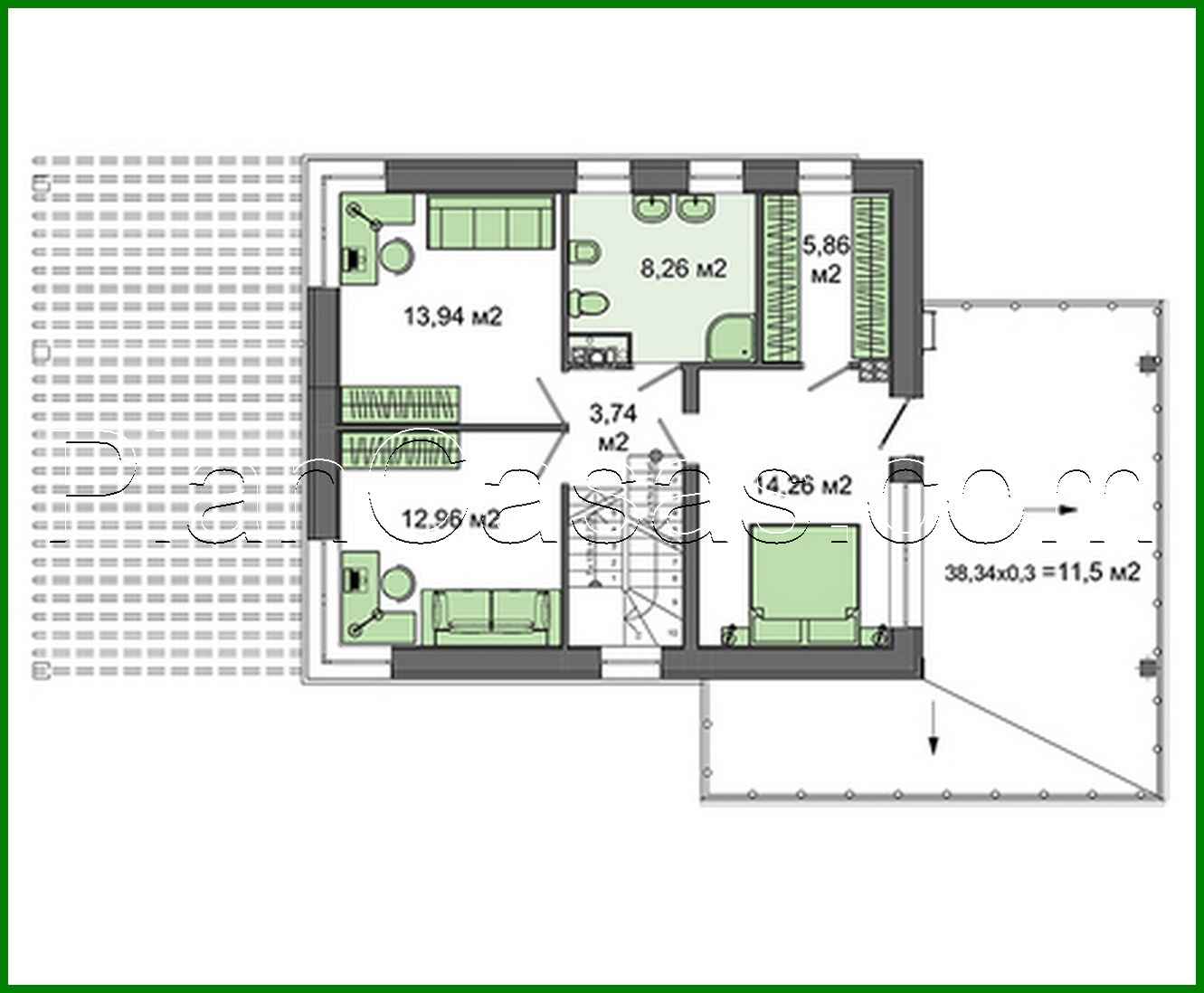
The project of a cozy two-story house with spacious verandas and terraces Número de plantas: 2 Área total: 168.40 m2 Área habitable: 69.15 m2 Altura de la casa: 7.55 m Altura del techo: 3.00 m Ángulo del techo: 2 ° Área del techo: 69.00 m2 Número de dormitorios: 4 Número de baños: 2 Tamaño mínimo del terreno (largo): 19.50 m Tamaño mínimo del terreno (ancho): 15.50 m Área construida: 131.94 m2 Materiales: Paredes: aerated concrete blocks Overlap: monolithic overlap Roofing: PVC membrane Foundation: Piles

¿Te interesa este plano?

Contáctanos para obtener los planos completos, un presupuesto de construcción o adaptar este diseño a tu terreno y necesidades.

Solicitar más información

Galería de visualizaciones