Proyecto de una casa económica de dos plantas

121 m² de área total / 1302 ft² 2 pisos 3 dormitorios 2 baños
Proyecto de una casa económica de dos plantas
Click to view

Descripción

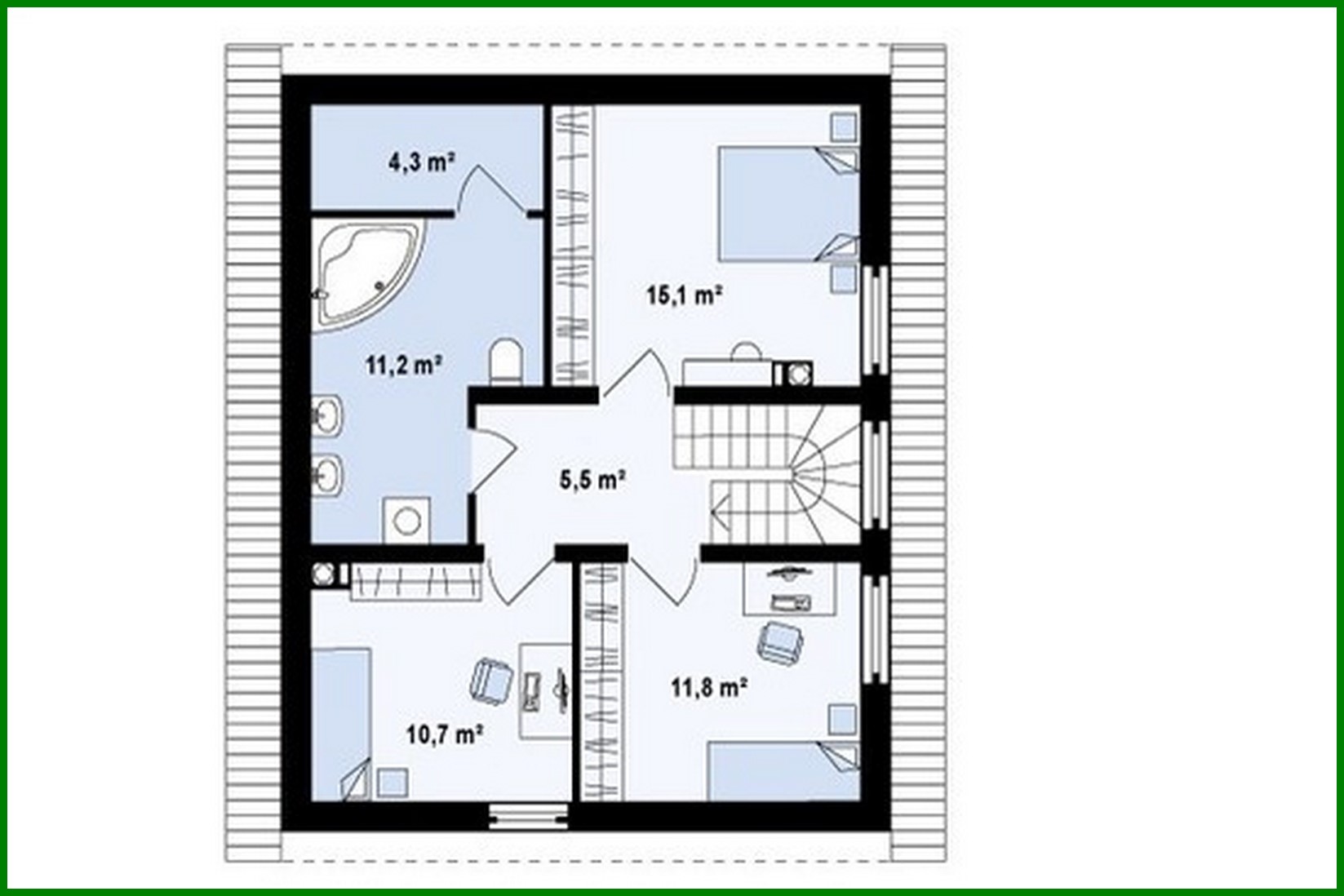
The project of a two-story economical house Número de plantas: 2 Área total: 121.00 m2 Altura de la casa: 8.23 m Altura del techo: 2.80 m Ángulo del techo: 30 ° Área del techo: 118.00 m2 Volumen: 318.00 m3 Número de dormitorios: 3 Número de baños: 2 Tamaño mínimo del terreno (largo): 18.00 m Tamaño mínimo del terreno (ancho): 14.00 m Materiales: Paredes: aerated concrete, ceramic blocks Overlap: monolithic overlap Roofing: ceramic tile, metal tile, cement-sand tile Foundation: monolithic tape band

¿Te interesa este plano?

Contáctanos para obtener los planos completos, un presupuesto de construcción o adaptar este diseño a tu terreno y necesidades.

Solicitar más información

Galería de visualizaciones