Hermoso proyecto de una casa de dos plantas con apartamentos de lujo para el propietario

273 m² de área total / 2939 ft² 2 pisos 5 dormitorios 4 baños
Hermoso proyecto de una casa de dos plantas con apartamentos de lujo para el propietario
Click to view

Descripción

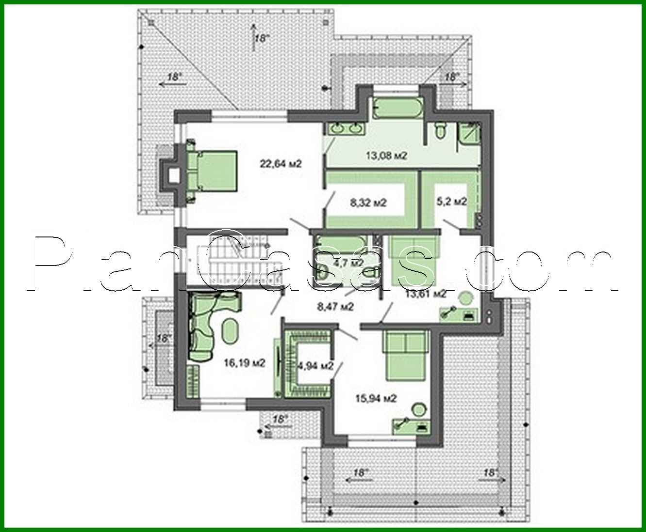
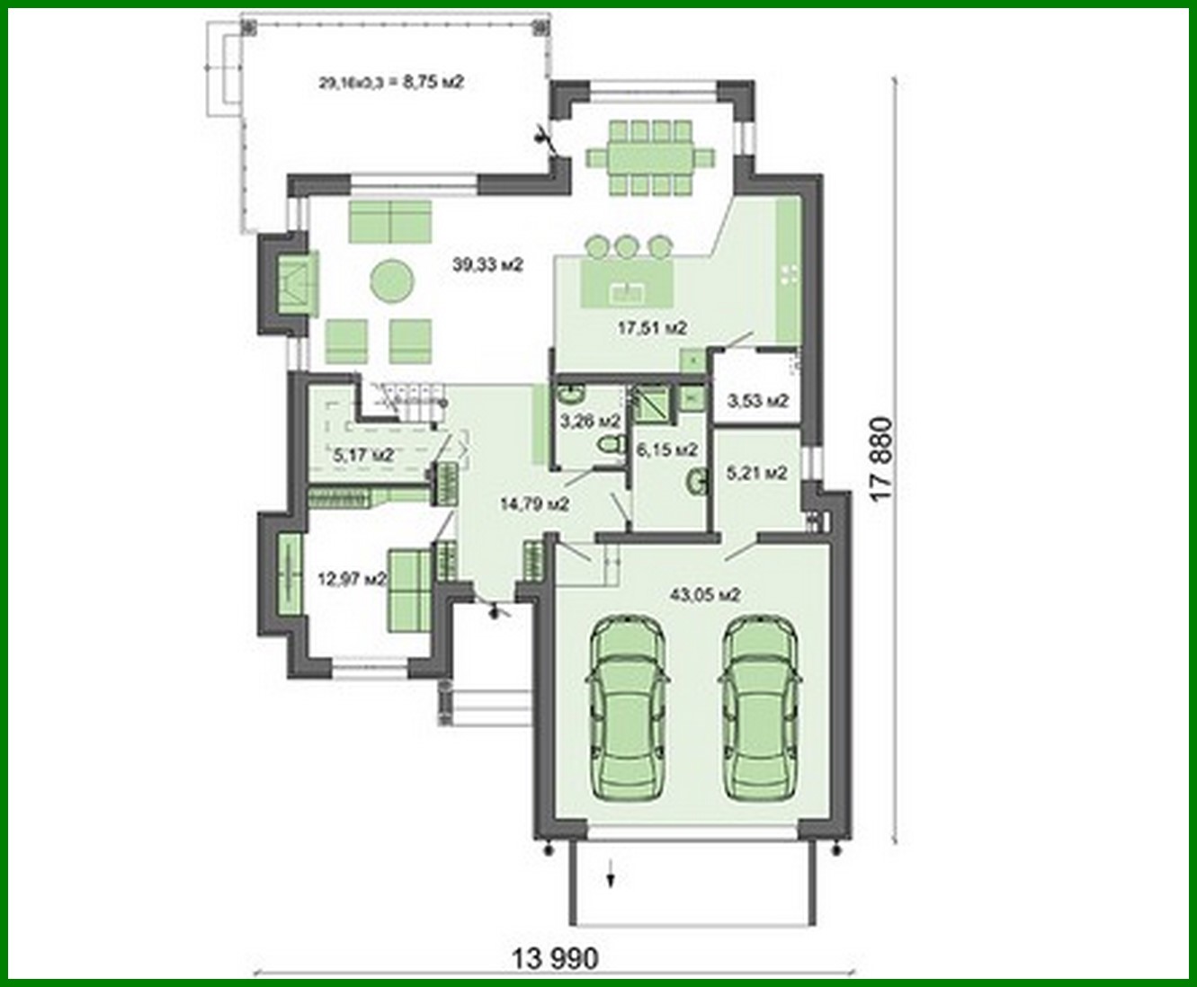
Beautiful Project of a two-storey house with luxury apartments for the owner Número de plantas: 2 Área total: 272.76 m2 Área habitable: 120.68 m2 Altura de la casa: 9.78 m Altura del techo: 3.00 m Ángulo del techo: 25/18 ° Área del techo: 314.50 m2 Número de dormitorios: 5 Número de baños: 4 Garaje: Two-car garage Tamaño mínimo del terreno (largo): 22.00 m Tamaño mínimo del terreno (ancho): 24.00 m Área construida: 241.16 m2

¿Te interesa este plano?

Contáctanos para obtener los planos completos, un presupuesto de construcción o adaptar este diseño a tu terreno y necesidades.

Solicitar más información

Galería de visualizaciones