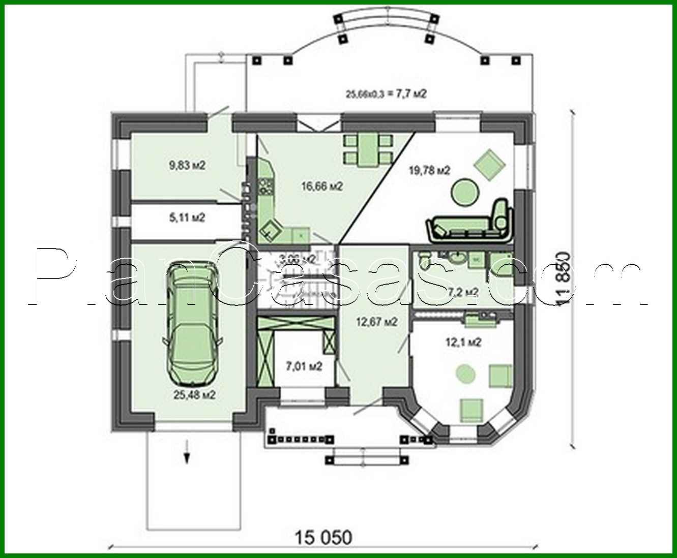
Proyecto original de un encantador edificio residencial de dos plantas con mirador

200 m² de área total / 2153 ft² 2 pisos 5 dormitorios 2 baños
Proyecto original de un encantador edificio residencial de dos plantas con mirador
Click to view

Descripción

Original project of a delightful two-story apartment building with bay window<br data-rich-text-line-break="true" />Número de plantas: 2<br data-rich-text-line-break="true" />Área total: 200.49 m2<br data-rich-text-line-break="true" />Área habitable: 83.42 m2<br data-rich-text-line-break="true" />Altura de la casa: 9.63 m<br data-rich-text-line-break="true" />Altura del techo: 2.80 m<br data-rich-text-line-break="true" />Ángulo del techo: 30 °<br data-rich-text-line-break="true" />Área del techo: 252.50 m2<br data-rich-text-line-break="true" />Número de dormitorios: 5<br data-rich-text-line-break="true" />Número de baños: 2<br data-rich-text-line-break="true" />Garaje: Garage for one car<br data-rich-text-line-break="true" />Tamaño mínimo del terreno (largo): 22.50 m<br data-rich-text-line-break="true" />Tamaño mínimo del terreno (ancho): 19.00 m<br data-rich-text-line-break="true" />Área construida: 218.36 m2<br data-rich-text-line-break="true" />Materiales:<br data-rich-text-line-break="true" />Paredes: ceramic blocks<br data-rich-text-line-break="true" />Techo: on wooden beams<br data-rich-text-line-break="true" />Roofing: metal<br data-rich-text-line-break="true" />Foundation: monolithic tape

¿Te interesa este plano?

Contáctanos para obtener los planos completos, un presupuesto de construcción o adaptar este diseño a tu terreno y necesidades.

Solicitar más información

Galería de visualizaciones