Increíble casa de dos plantas con mirador y garaje integrado

223 m² de área total / 2400 ft² 2 pisos 4 dormitorios 2 baños
Increíble casa de dos plantas con mirador y garaje integrado
Click to view

Descripción

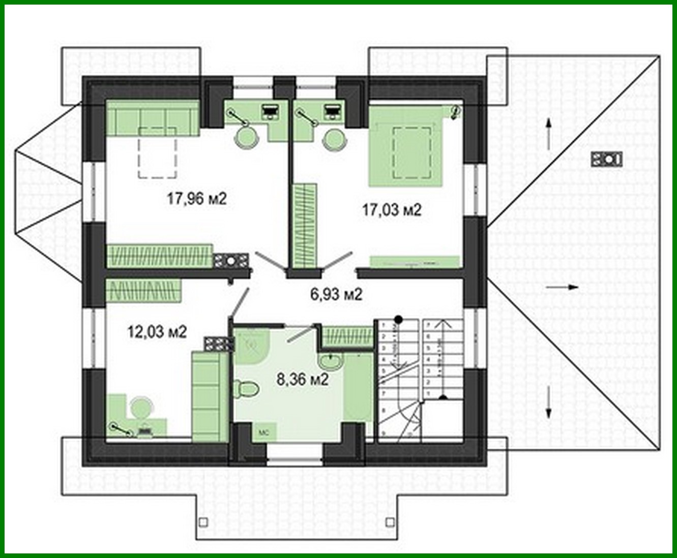
Amazing two-story house with bay window and built-in garage Número de plantas: 3 Área total: 222.84 m2 Área habitable: 155.35 m2 Altura de la casa: 8.55 m Altura del techo: 2.80 m Ángulo del techo: 40/28/20 ° Área del techo: 181.00 m2 Número de dormitorios: 4 Número de baños: 2 Garaje: Garage for one car Tamaño mínimo del terreno (largo): 24.50 m Tamaño mínimo del terreno (ancho): 20.50 m Área construida: 251.96 m2 Materiales: Paredes: brick Overlap: monolithic overlap Roofing: ceramic tile, metal tile, cement-sand tile Foundation: monolithic tape

¿Te interesa este plano?

Contáctanos para obtener los planos completos, un presupuesto de construcción o adaptar este diseño a tu terreno y necesidades.

Solicitar más información

Galería de visualizaciones