Proyecto de una casa chic con tres enormes dormitorios

261 m² de área total / 2809 ft² 2 pisos 3 dormitorios 4 baños
Proyecto de una casa chic con tres enormes dormitorios
Click to view

Descripción

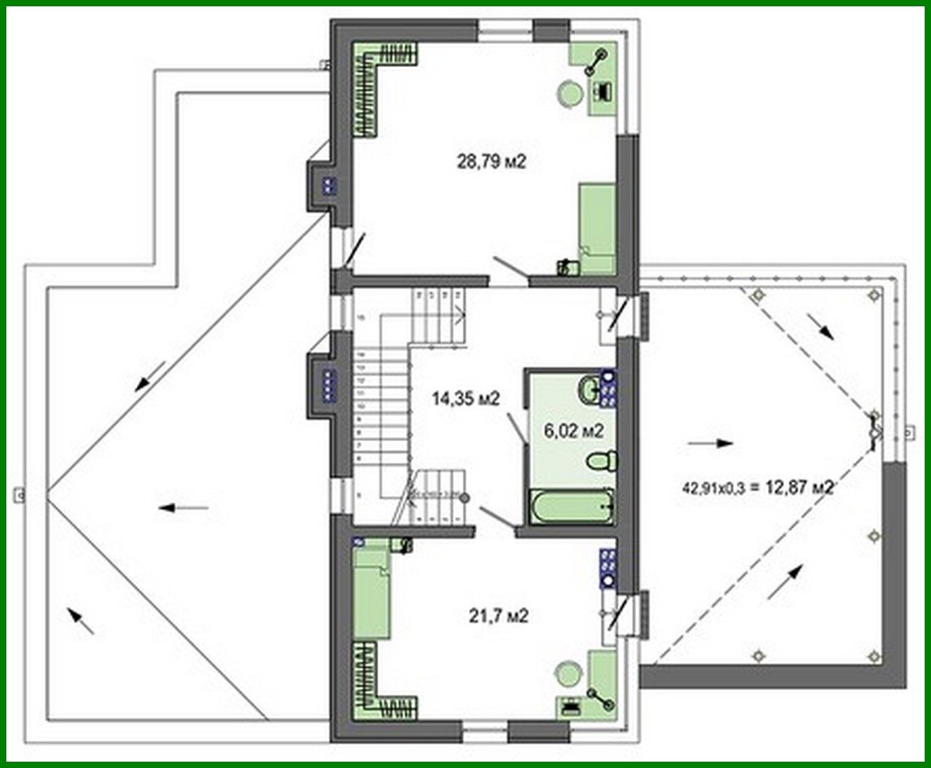
Layout of a chic house with three huge bedrooms Número de plantas: 2 Área total: 261.15 m2 Área habitable: 99.58 m2 Altura de la casa: 7.30 m Altura del techo: 2.80 m Ángulo del techo: 2 ° Área del techo: 153.50 m2 Número de dormitorios: 3 Número de baños: 4 Garaje: Two-car garage Tamaño mínimo del terreno (largo): 25.50 m Tamaño mínimo del terreno (ancho): 21.50 m Área construida: 284.88 m2 SIZES OF ROOMS Materiales: Paredes: aerated concrete blocks Overlap: monolithic overlap Roofing: PVC membrane Foundation: monolithic slab

¿Te interesa este plano?

Contáctanos para obtener los planos completos, un presupuesto de construcción o adaptar este diseño a tu terreno y necesidades.

Solicitar más información

Galería de visualizaciones