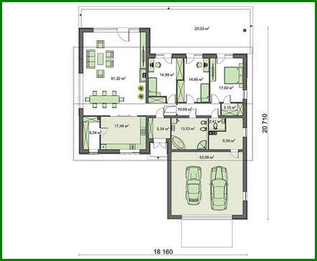
Proyecto de una casa de una planta de forma sencilla con garaje para dos coches

250 m² de área total / 2691 ft² 1 piso 3 dormitorios 2 baños
Proyecto de una casa de una planta de forma sencilla con garaje para dos coches
Click to view

Descripción

The project of a single-storey house of a simple form with a garage for two cars Número de plantas: 1 Área total: 249.71 m2 Área habitable: 107.89 m2 Altura de la casa: 6.85 m Altura del techo: 2.80 m Ángulo del techo: 30 ° Área del techo: 331.35 m2 Volumen: 581.00 m3 Número de dormitorios: 3 Número de baños: 2 Garaje: Two-car garage Tamaño mínimo del terreno (largo): 28.00 m Tamaño mínimo del terreno (ancho): 25.00 m Área construida: 373.39 m2 Materiales: Paredes: aerated concrete blocks Techo: on wooden beams Roofing: metal tile, ceramic tile, bitumen Foundation: monolithic tape band

¿Te interesa este plano?

Contáctanos para obtener los planos completos, un presupuesto de construcción o adaptar este diseño a tu terreno y necesidades.

Solicitar más información

Galería de visualizaciones