Proyecto de una casa con ático y una habitación adicional en la planta baja

169 m² de área total / 1819 ft² 1 piso 3 dormitorios 4 baños
Proyecto de una casa con ático y una habitación adicional en la planta baja
Click to view

Descripción

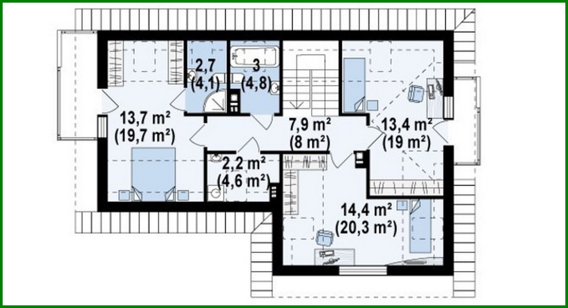
Project of a house with an attic and an additional room on the ground floor Número de plantas: 2 Área total: 168.70 m2 Área habitable: 148.00 m2 Altura de la casa: 6.76 m Altura del techo: 2.80 m Ángulo del techo: 35 ° Área del techo: 176.40 m2 Volumen: 415.61 m3 Número de dormitorios: 3 Número de baños: 4 Tamaño mínimo del terreno (largo): 23.84 m Tamaño mínimo del terreno (ancho): 17.84 m Materiales: Paredes: aerated concrete, ceramic blocks Overlap: monolithic overlap Roofing: ceramic tile, metal tile, cement-sand tile Foundation: monolithic tape band

¿Te interesa este plano?

Contáctanos para obtener los planos completos, un presupuesto de construcción o adaptar este diseño a tu terreno y necesidades.

Solicitar más información

Galería de visualizaciones