Proyecto moderno de una casa de campo de dos plantas con garaje

157 m² de área total / 1690 ft² 2 pisos 3 dormitorios 2 baños
Proyecto moderno de una casa de campo de dos plantas con garaje
Click to view

Descripción

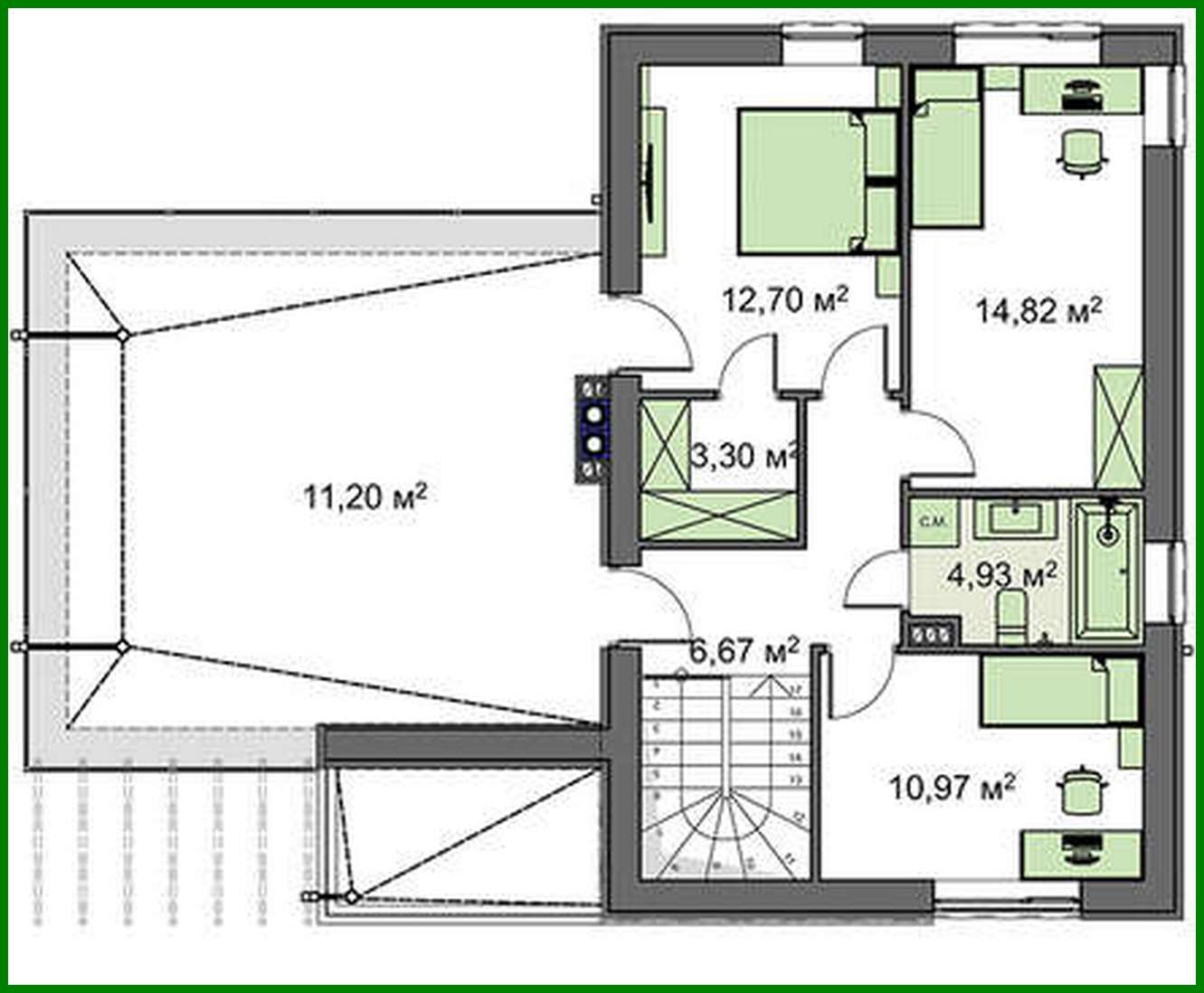
Modern project of a two-story cottage with a garage Número de plantas: 2 Área total: 156.71 m2 Área habitable: 69.12 m2 Altura de la casa: 7.50 m Altura del techo: 2.80 m Ángulo del techo: 2/3 ° Área del techo: 60.00 m2 Volumen: 351.00 m3 Número de dormitorios: 3 Número de baños: 2 Garaje: Garage for one car Tamaño mínimo del terreno (largo): 18.00 m Tamaño mínimo del terreno (ancho): 22.00 m Área construida: 174.19 m2 Materiales: Paredes: aerated concrete blocks Overlap: monolithic overlap Roofing: PVC membrane Foundation: monolithic tape

¿Te interesa este plano?

Contáctanos para obtener los planos completos, un presupuesto de construcción o adaptar este diseño a tu terreno y necesidades.

Solicitar más información

Galería de visualizaciones