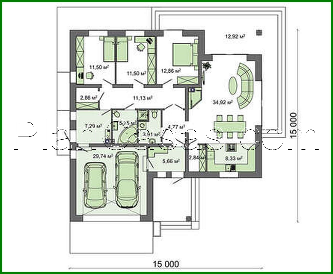
Proyecto de una casa de una planta de 166 m² con garaje integrado para 2 coches

166 m² de área total / 1787 ft² 1 piso 3 dormitorios 2 baños
Proyecto de una casa de una planta de 166 m² con garaje integrado para 2 coches
Click to view

Descripción

Project of a one-story cottage with an area of ​​166 square meters. m with built-in garage for 2 cars Número de plantas: 1 Área total: 165.98 m2 Área habitable: 70.78 m2 Altura de la casa: 7.50 m Altura del techo: 2.80 m Ángulo del techo: 30 ° Área del techo: 281.40 m2 Volumen: 1035.00 m3 Número de dormitorios: 3 Número de baños: 2 Garaje: Two-car garage Tamaño mínimo del terreno (largo): 23.00 m Tamaño mínimo del terreno (ancho): 23.00 m Materiales: Paredes: aerated concrete, ceramic blocks Techo: on wooden beams Roofing: metal tile, ceramic tile, bitumen Foundation: monolithic tape

¿Te interesa este plano?

Contáctanos para obtener los planos completos, un presupuesto de construcción o adaptar este diseño a tu terreno y necesidades.

Solicitar más información

Galería de visualizaciones