Proyecto de una casa de campo con oficina y garaje

225 m² de área total / 2422 ft² 2 pisos 5 dormitorios 4 baños
Proyecto de una casa de campo con oficina y garaje
Click to view

Descripción

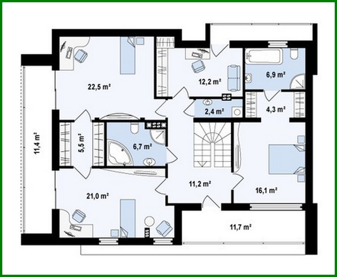
Project of a cottage with an office and a garage Número de plantas: 2 Área total: 225.40 m2 Área habitable: 197.40 m2 Altura de la casa: 7.69 m Altura del techo: 2.80 m Ángulo del techo: 3 ° Área del techo: 165.00 m2 Volumen: 649.00 m3 Número de dormitorios: 5 Número de baños: 4 Garaje: Garage for one car Tamaño mínimo del terreno (largo): 23.24 m Tamaño mínimo del terreno (ancho): 19.34 m Materiales: Paredes: aerated concrete, ceramic blocks Overlap: monolithic overlap Roofing: PVC membrane Foundation: monolithic tape band

¿Te interesa este plano?

Contáctanos para obtener los planos completos, un presupuesto de construcción o adaptar este diseño a tu terreno y necesidades.

Solicitar más información

Galería de visualizaciones