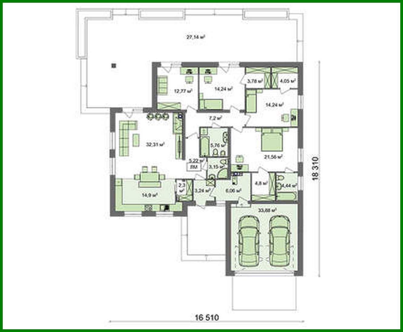
Proyecto de casa de una planta con terraza

221 m² de área total / 2379 ft² 1 piso 4 dormitorios 3 baños
Proyecto de casa de una planta con terraza
Click to view

Descripción

One-storey house project with a terrace Número de plantas: 1 Área total: 221.04 m2 Área habitable: 95.12 m2 Altura de la casa: 7.05 m Altura del techo: 2.80 m Ángulo del techo: 25 ° Área del techo: 341.50 m2 Número de dormitorios: 4 Número de baños: 3 Garaje: Two-car garage Tamaño mínimo del terreno (largo): 20.44 m Tamaño mínimo del terreno (ancho): 22.24 m Área construida: 381.6 m2 Materiales: Paredes: aerated concrete blocks Techo: on wooden beams Roofing: ceramic tile, metal tile, cement-sand tile Foundation: monolithic slab

¿Te interesa este plano?

Contáctanos para obtener los planos completos, un presupuesto de construcción o adaptar este diseño a tu terreno y necesidades.

Solicitar más información

Galería de visualizaciones