Proyecto de una casa clásica con garaje y un hermoso ático

260 m² de área total / 2799 ft² 1 piso 4 dormitorios 3 baños
Proyecto de una casa clásica con garaje y un hermoso ático
Click to view

Descripción

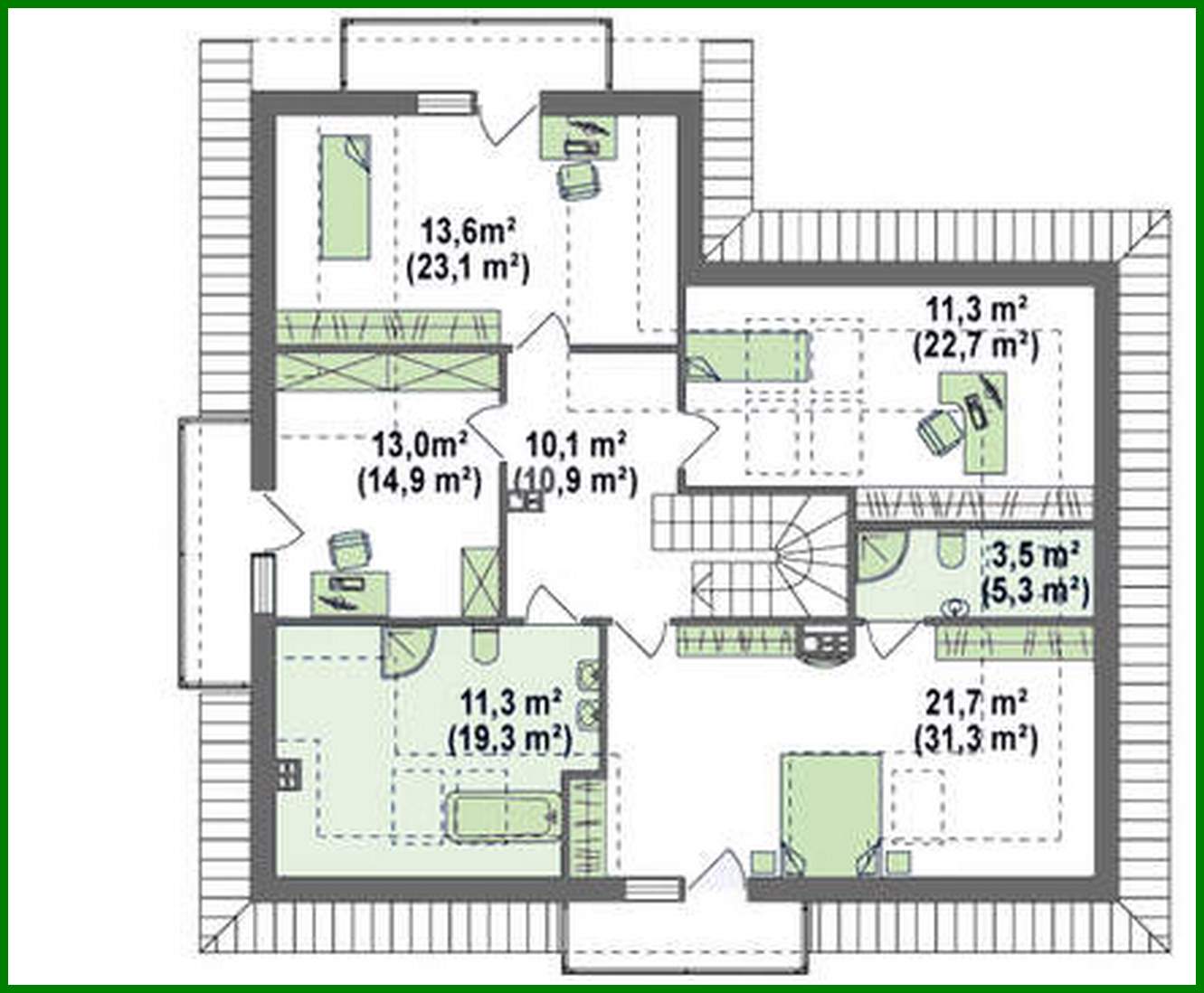
The project of a classic house with a garage and a beautiful attic Número de plantas: 2 Área total: 260.40 m2 Área habitable: 195.20 m2 Altura de la casa: 7.73 m Altura del techo: 2.80 m Ángulo del techo: 34 ° / 37 ° Área del techo: 244.00 m2 Volumen: 619.00 m3 Número de dormitorios: 4 Número de baños: 3 Garaje: Garage for one car Tamaño mínimo del terreno (largo): 20.84 m Tamaño mínimo del terreno (ancho): 21.64 m Área construida: 162 m2 Materiales: Paredes: aerated concrete, ceramic blocks Overlap: monolithic overlap Roofing: ceramic tile, metal tile, cement-sand tile Foundation: monolithic tape

¿Te interesa este plano?

Contáctanos para obtener los planos completos, un presupuesto de construcción o adaptar este diseño a tu terreno y necesidades.

Solicitar más información

Galería de visualizaciones