Proyecto de una casa espaciosa con garaje para dos coches

263 m² de área total / 2831 ft² 2 pisos 4 dormitorios 2 baños
Proyecto de una casa espaciosa con garaje para dos coches
Click to view

Descripción

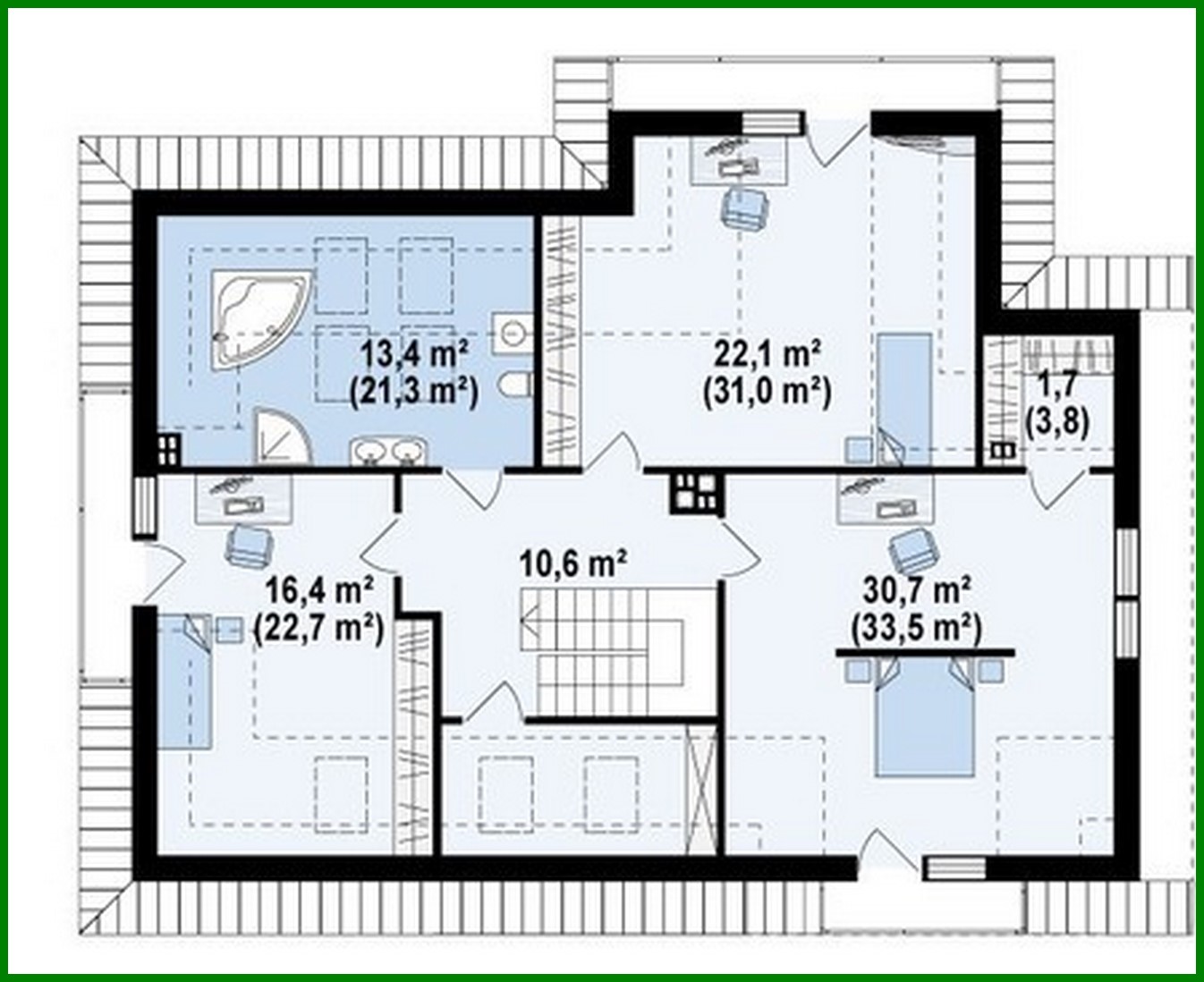
The project of a spacious house with a garage for two cars Número de plantas: 2 Área total: 262.90 m2 Área habitable: 197.20 m2 Altura de la casa: 8.31 m Altura del techo: 2.80 m Ángulo del techo: 37 ° Área del techo: 260.00 m2 Volumen: 648.00 m3 Número de dormitorios: 4 Número de baños: 2 Garaje: Two-car garage Tamaño mínimo del terreno (largo): 22.64 m Tamaño mínimo del terreno (ancho): 23.24 m Área construida: 162 m2 Materiales: Paredes: aerated concrete, ceramic blocks Overlap: monolithic overlap Roofing: ceramic tile, metal tile, cement-sand tile Foundation: monolithic tape band

¿Te interesa este plano?

Contáctanos para obtener los planos completos, un presupuesto de construcción o adaptar este diseño a tu terreno y necesidades.

Solicitar más información

Galería de visualizaciones