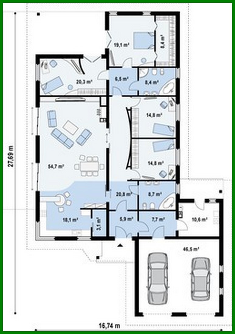
Proyecto de casa de campo de una planta para un terreno estrecho con un gran garaje

271 m² de área total / 2917 ft² 1 piso 4 dormitorios 2 baños
Proyecto de casa de campo de una planta para un terreno estrecho con un gran garaje
Click to view

Descripción

Single-storey cottage project for a narrow plot with a large garage Número de plantas: 1 Área total: 270.90 m2 Área habitable: 224.40 m2 Altura de la casa: 6.83 m Altura del techo: 2.80 m Ángulo del techo: 25 ° Área del techo: 465.00 m2 Volumen: 661.00 m3 Número de dormitorios: 4 Número de baños: 2 Garaje: Two-car garage Tamaño mínimo del terreno (largo): 35.69 m Tamaño mínimo del terreno (ancho): 24.74 m Área construida: 314 m2 Materiales: Paredes: aerated concrete, ceramic blocks Techo: on wooden beams Roofing: ceramic tile, metal tile, cement-sand tile Foundation: monolithic tape band

¿Te interesa este plano?

Contáctanos para obtener los planos completos, un presupuesto de construcción o adaptar este diseño a tu terreno y necesidades.

Solicitar más información

Galería de visualizaciones