Proyecto de casa de cinco dormitorios con garaje frontal

252 m² de área total / 2713 ft² 2 pisos 5 dormitorios 3 baños
Proyecto de casa de cinco dormitorios con garaje frontal
Click to view

Descripción

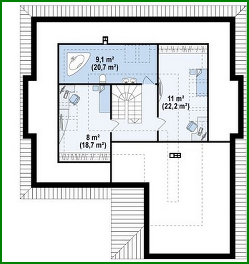
Three-bedroom house project with frontal garage Número de plantas: 2 Área total: 251.60 m2 Área habitable: 187.00 m2 Altura de la casa: 6.79 m Altura del techo: 2.80 m Ángulo del techo: 25 ° Área del techo: 282.00 m2 Volumen: 617.86 m3 Número de dormitorios: 5 Número de baños: 3 Garaje: Two-car garage Tamaño mínimo del terreno (largo): 25.34 m Tamaño mínimo del terreno (ancho): 23.84 m Área construida: 218 m2 Materiales: Paredes: aerated concrete, ceramic blocks Overlap: monolithic overlap Roofing: ceramic tile, metal tile, cement-sand tile Foundation: monolithic tape band

¿Te interesa este plano?

Contáctanos para obtener los planos completos, un presupuesto de construcción o adaptar este diseño a tu terreno y necesidades.

Solicitar más información

Galería de visualizaciones