Proyecto de casa de una planta, alta tecnología y estilo, con piscina y garaje para un coche

134 m² de área total / 1442 ft² 1 piso 3 dormitorios 3 baños
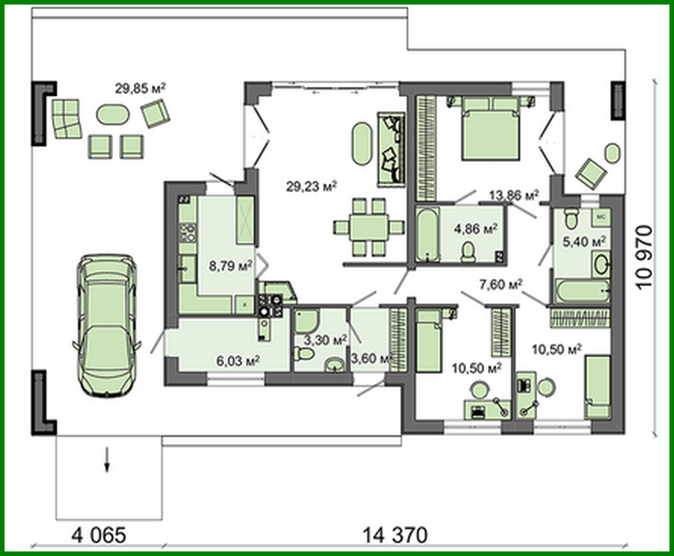
Proyecto de casa de una planta, alta tecnología y estilo, con piscina y garaje para un coche
Click to view

Descripción

High-tech stylish single-storey house project with pool and one-car garage Número de plantas: 1 Área total: 133.50 m2 Área habitable: 64.10 m2 Altura de la casa: 4.00 m Altura del techo: 2.80 m Ángulo del techo: 3 ° Área del techo: 178.77 m2 Volumen: 263.00 m3 Número de dormitorios: 3 Número de baños: 3 Garaje: Garage for one car Tamaño mínimo del terreno (largo): 24.21 m Tamaño mínimo del terreno (ancho): 18.76 m Área construida: 240.9 m2 Materiales: Paredes: aerated concrete blocks Overlap: monolithic overlap Roofing: PVC membrane Foundation: monolithic tape band

¿Te interesa este plano?

Contáctanos para obtener los planos completos, un presupuesto de construcción o adaptar este diseño a tu terreno y necesidades.

Solicitar más información

Galería de visualizaciones