Hermosa casa de dos plantas color café

146 m² de área total / 1572 ft² 2 pisos 3 dormitorios 2 baños
Hermosa casa de dos plantas color café
Click to view

Descripción

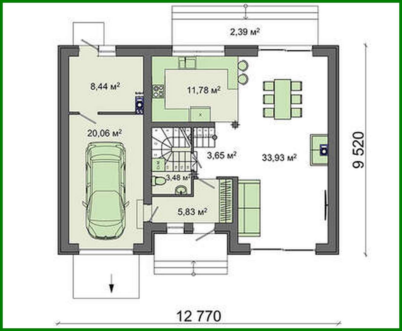
Beautiful two-story coffee color house Número de plantas: 2 Área total: 146.10 m2 Área habitable: 71.22 m2 Altura de la casa: 8.91 m Altura del techo: 2.80 m Ángulo del techo: 25 ° Área del techo: 197.50 m2 Número de dormitorios: 3 Número de baños: 2 Garaje: Garage for one car Tamaño mínimo del terreno (largo): 18.00 m Tamaño mínimo del terreno (ancho): 21.00 m Área construida: 142.53 m2 Materiales: Paredes: aerated concrete blocks Overlap: monolithic overlap Roofing: metal tile, ceramic tile, bitumen Foundation: monolithic tape band

¿Te interesa este plano?

Contáctanos para obtener los planos completos, un presupuesto de construcción o adaptar este diseño a tu terreno y necesidades.

Solicitar más información

Galería de visualizaciones