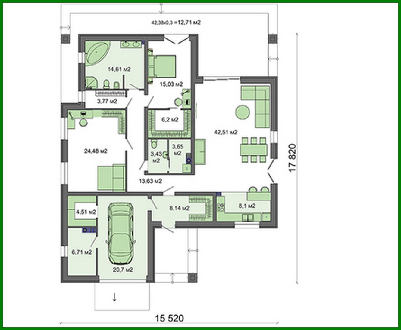
Proyecto de edificio residencial de una planta con una gran terraza

188 m² de área total / 2024 ft² 1 piso 2 dormitorios 2 baños
Proyecto de edificio residencial de una planta con una gran terraza
Click to view

Descripción

Project of a one-story residential building with a large terrace Número de plantas: 1 Área total: 188.18 m2 Área habitable: 82.02 m2 Altura de la casa: 6.70 m Altura del techo: 2.80 m Ángulo del techo: 22 ° Área del techo: 334.00 m2 Número de dormitorios: 2 Número de baños: 2 Garaje: Garage for one car Tamaño mínimo del terreno (largo): 20.50 m Tamaño mínimo del terreno (ancho): 22.50 m Área construida: 295.07 m2 Materiales: Paredes: aerated concrete blocks Techo: on wooden beams Roofing: metal tile, ceramic tile, bitumen Foundation: monolithic tape

¿Te interesa este plano?

Contáctanos para obtener los planos completos, un presupuesto de construcción o adaptar este diseño a tu terreno y necesidades.

Solicitar más información

Galería de visualizaciones