Increíble casa moderna

243 m² de área total / 2616 ft² 2 pisos 4 dormitorios 3 baños
Increíble casa moderna
Click to view

Descripción

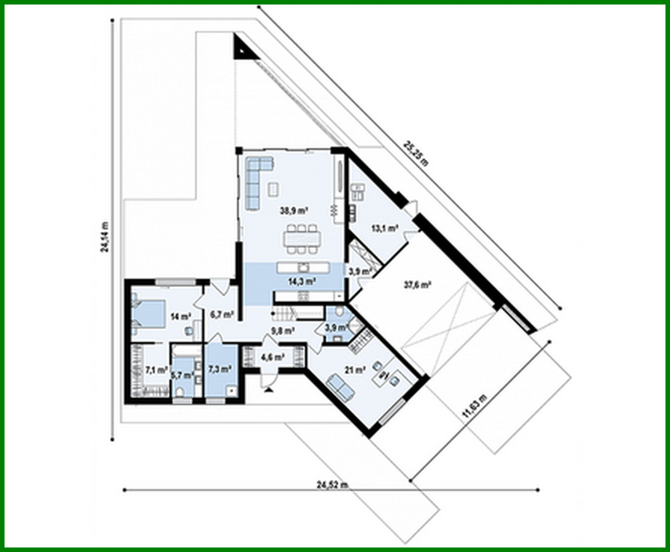
Número de plantas: 2 Área total: 243.00 m2 Área habitable: 189.90 m2 Altura de la casa: 10.00 m Altura del techo: 2.80 m Ángulo del techo: 22 ° ° Volumen: 706.32 m3 Número de dormitorios: 4 Número de baños: 3 Garaje: Garage for one car Tamaño mínimo del terreno (largo): 30.14 m Tamaño mínimo del terreno (ancho): 30.52 m Área construida: 232 m2 Materiales: Paredes: aerated concrete, ceramic blocks Overlap: monolithic overlap Roofing: PVC membrane Foundation: monolithic tape

¿Te interesa este plano?

Contáctanos para obtener los planos completos, un presupuesto de construcción o adaptar este diseño a tu terreno y necesidades.

Solicitar más información

Galería de visualizaciones