Edificio residencial con ático y garaje

174 m² de área total / 1873 ft² 1 piso 4 dormitorios 2 baños
Edificio residencial con ático y garaje
Click to view

Descripción

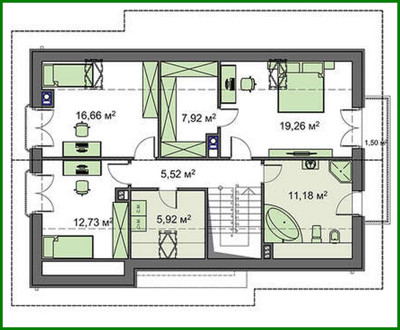
Residential building with attic and garage Número de plantas: 2 Área total: 173.76 m2 Área habitable: 85.33 m2 Altura de la casa: 8.62 m Altura del techo: 2.80 m Ángulo del techo: 40 ° Área del techo: 208.73 m2 Número de dormitorios: 4 Número de baños: 2 Garaje: Garage for one car Tamaño mínimo del terreno (largo): 17.20 m Tamaño mínimo del terreno (ancho): 21.10 m Área construida: 156.3 m2 Materiales: Paredes: aerated concrete blocks Overlap: monolithic overlap Roofing: metal tile, ceramic tile, bitumen Foundation: monolithic tape

¿Te interesa este plano?

Contáctanos para obtener los planos completos, un presupuesto de construcción o adaptar este diseño a tu terreno y necesidades.

Solicitar más información

Galería de visualizaciones