Casa moderna con ático y garaje

157 m² de área total / 1690 ft² 1 piso 4 dormitorios 2 baños
Casa moderna con ático y garaje
Click to view

Descripción

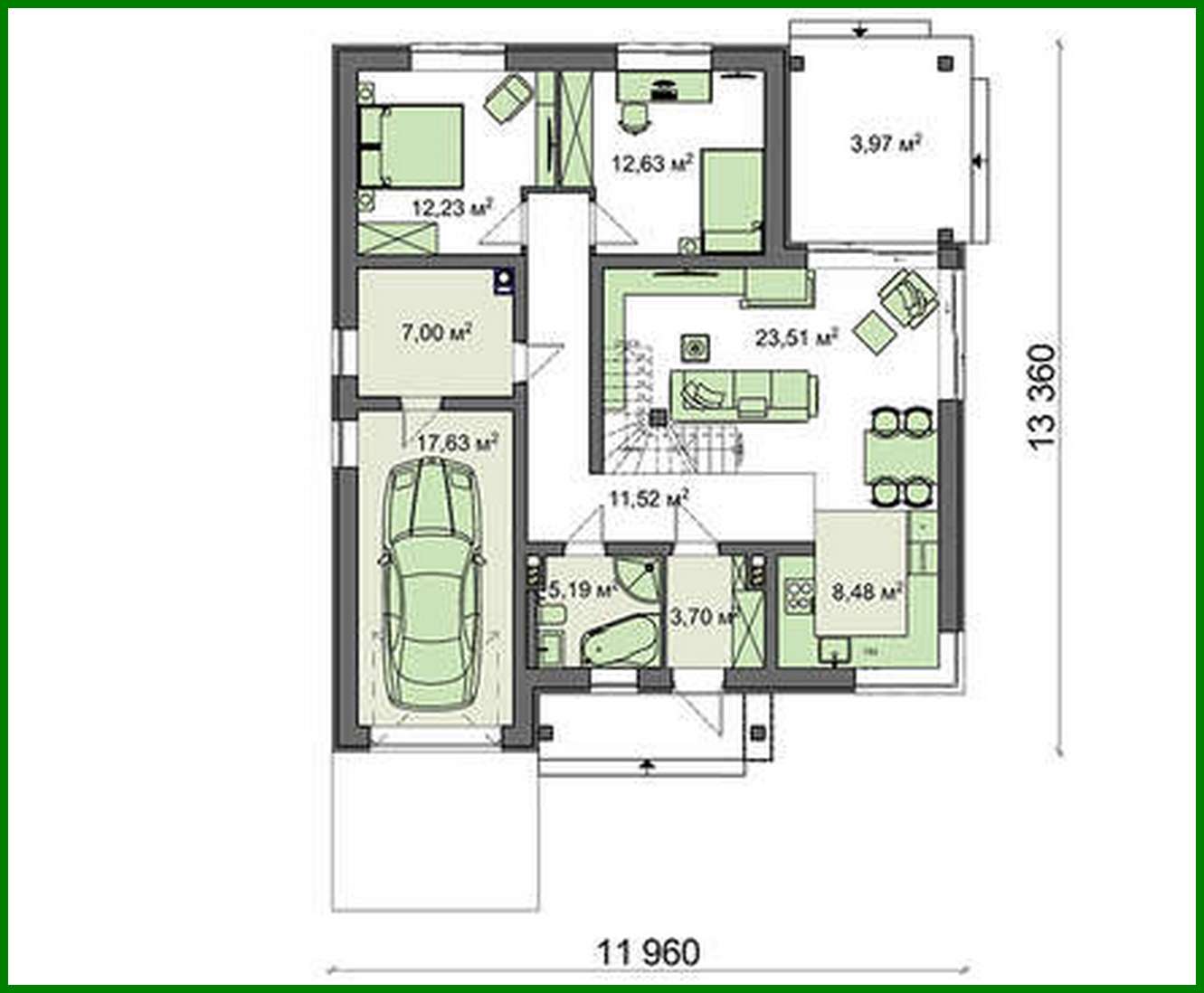
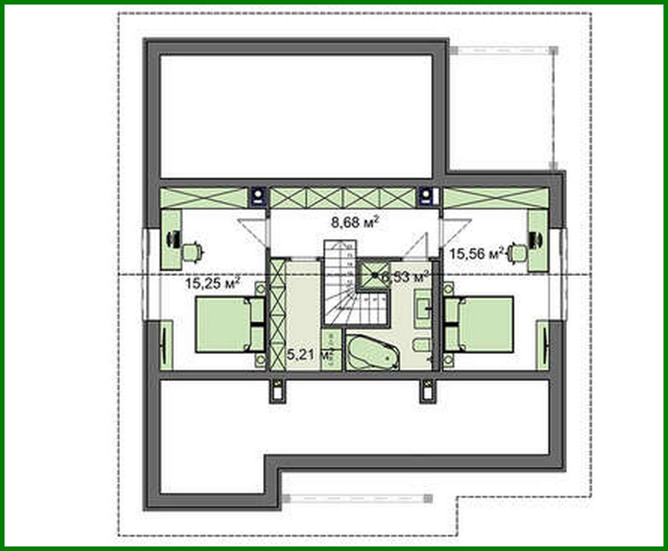
Modern house with an attic and a garage Número de plantas: 2 Área total: 157.09 m2 Área habitable: 79.18 m2 Altura de la casa: 7.92 m Altura del techo: 2.80 m Ángulo del techo: 30 ° Área del techo: 221.22 m2 Número de dormitorios: 4 Número de baños: 2 Garaje: Garage for one car Tamaño mínimo del terreno (largo): 21.50 m Tamaño mínimo del terreno (ancho): 20.00 m Área construida: 172.8 m2 Materiales: Paredes: aerated concrete blocks Overlap: monolithic overlap Roofing: metal tile, ceramic tile, bitumen Foundation: monolithic tape

¿Te interesa este plano?

Contáctanos para obtener los planos completos, un presupuesto de construcción o adaptar este diseño a tu terreno y necesidades.

Solicitar más información

Galería de visualizaciones