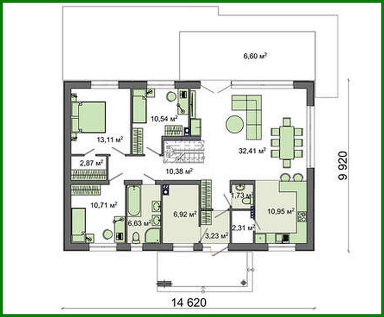
Hermosa casa con una amplia sala de estar

192 m² de área total / 2067 ft² 1 piso 3 dormitorios 2 baños
Hermosa casa con una amplia sala de estar
Click to view

Descripción

Beautiful house building with a spacious living room Número de plantas: 1 Área total: 192.45 m2 Área habitable: 66.77 m2 Altura de la casa: 7.43 m Altura del techo: 2.80 m Ángulo del techo: 35 ° Área del techo: 235.00 m2 Número de dormitorios: 3 Número de baños: 2 Tamaño mínimo del terreno (largo): 22.50 m Tamaño mínimo del terreno (ancho): 18.00 m Área construida: 222.55 m2 Materiales: Paredes: aerated concrete blocks Techo: on wooden beams Roofing: metal tile, ceramic tile, bitumen Foundation: monolithic tape

¿Te interesa este plano?

Contáctanos para obtener los planos completos, un presupuesto de construcción o adaptar este diseño a tu terreno y necesidades.

Solicitar más información

Galería de visualizaciones