Proyecto de un pintoresco edificio residencial con decoración chocolate

277 m² de área total / 2982 ft² 2 pisos 4 dormitorios 2 baños
Proyecto de un pintoresco edificio residencial con decoración chocolate
Click to view

Descripción

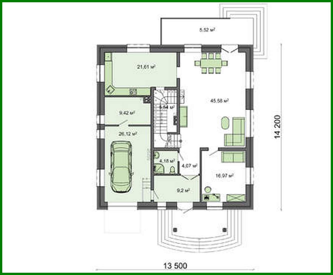
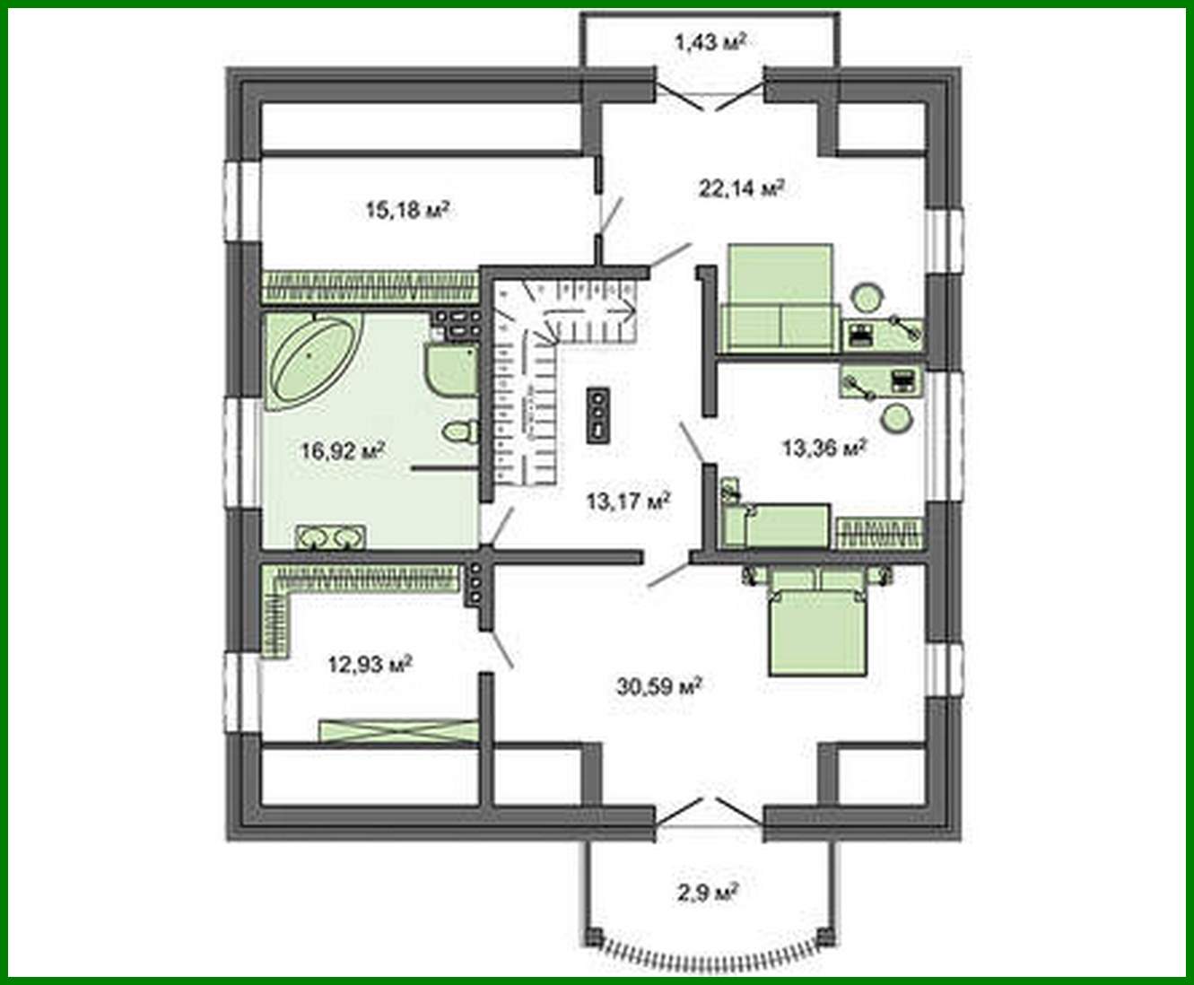
Project of a picturesque residential building with chocolate decor Número de plantas: 2 Área total: 276.83 m2 Área habitable: 128.64 m2 Altura de la casa: 11.46 m Altura del techo: 3.00 m Ángulo del techo: 45 ° Área del techo: 356.50 m2 Número de dormitorios: 4 Número de baños: 2 Garaje: Garage for one car Tamaño mínimo del terreno (largo): 22.00 m Tamaño mínimo del terreno (ancho): 23.00 m Área construida: 247.74 m2 Materiales: Paredes: ceramic blocks Overlap: floor slabs Roofing: ceramic tiles Foundation: monolithic tape band

¿Te interesa este plano?

Contáctanos para obtener los planos completos, un presupuesto de construcción o adaptar este diseño a tu terreno y necesidades.

Solicitar más información

Galería de visualizaciones