Hermoso edificio de apartamentos con una solución de garaje inusual

173 m² de área total / 1862 ft² 2 pisos 4 dormitorios 2 baños
Hermoso edificio de apartamentos con una solución de garaje inusual
Click to view

Descripción

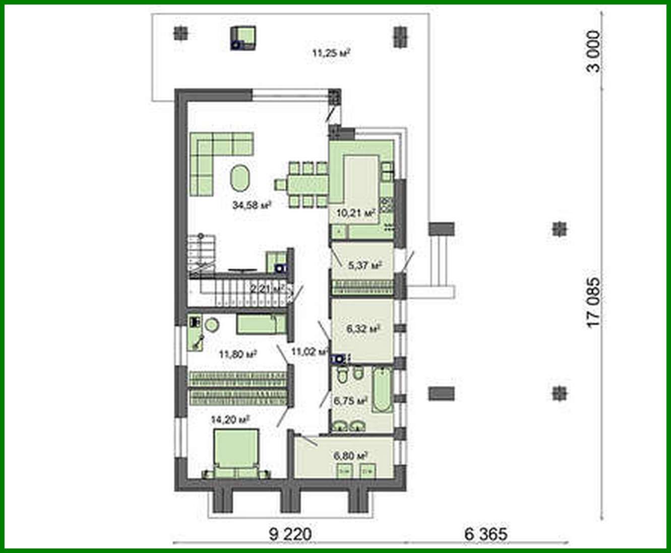
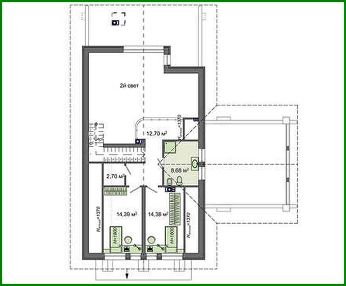
Beautiful apartment building with an unusual garage solution Número de plantas: 2 Área total: 173.40 m2 Área habitable: 89.35 m2 Altura de la casa: 7.17 m Altura del techo: 2.80 m Ángulo del techo: 35 ° Área del techo: 335.00 m2 Volumen: 511.96 m3 Número de dormitorios: 4 Número de baños: 2 Tamaño mínimo del terreno (largo): 24.00 m Tamaño mínimo del terreno (ancho): 17.00 m Área construida: 254.2 m2 Materiales: Paredes: aerated concrete blocks Overlap: monolithic overlap Roofing: metal tile, ceramic tile, bitumen Foundation: monolithic tape

¿Te interesa este plano?

Contáctanos para obtener los planos completos, un presupuesto de construcción o adaptar este diseño a tu terreno y necesidades.

Solicitar más información

Galería de visualizaciones