Proyecto moderno de una casa con ático para un terreno estrecho

213 m² de área total / 2293 ft² 1 piso 4 dormitorios 3 baños
Proyecto moderno de una casa con ático para un terreno estrecho
Click to view

Descripción

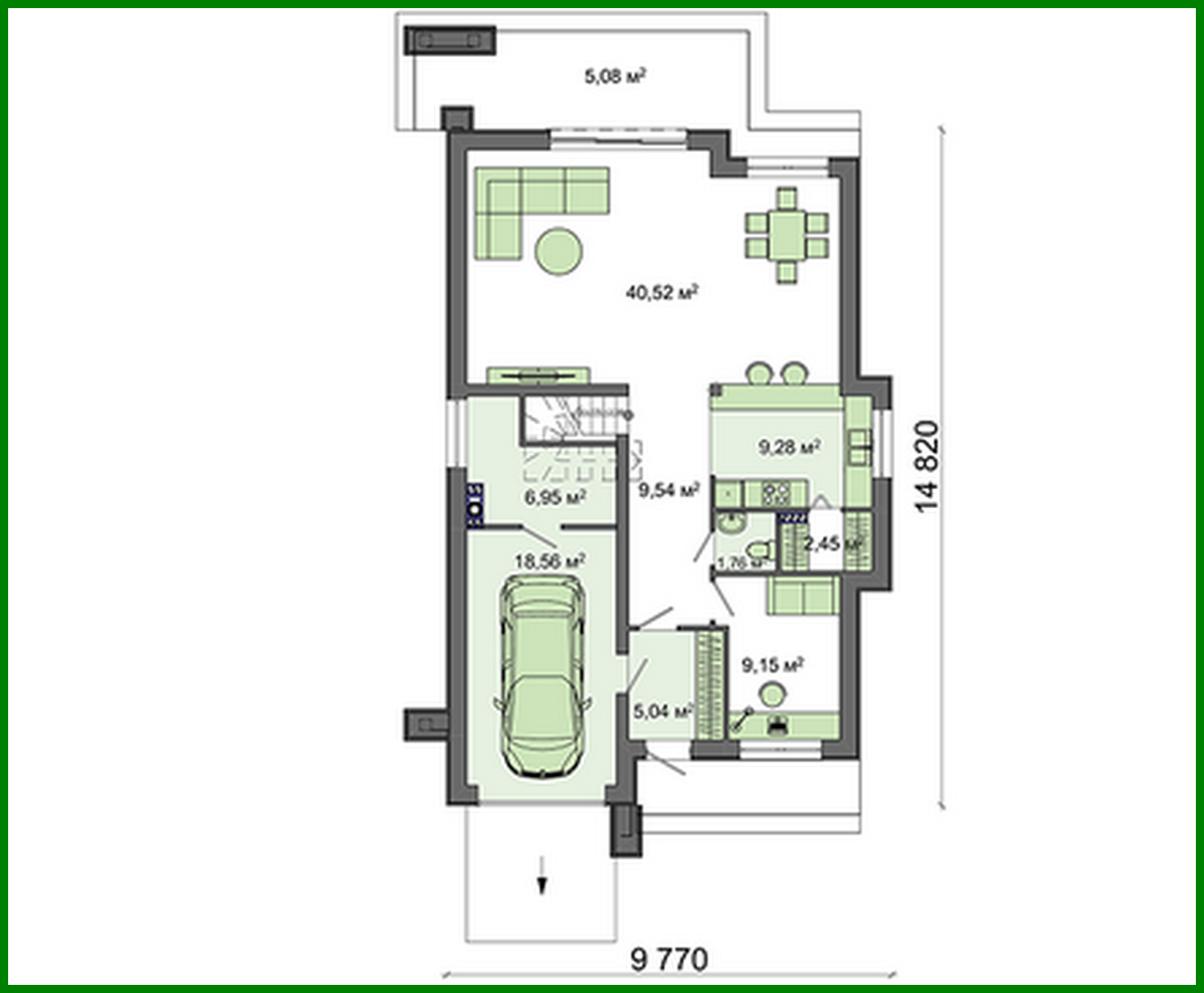
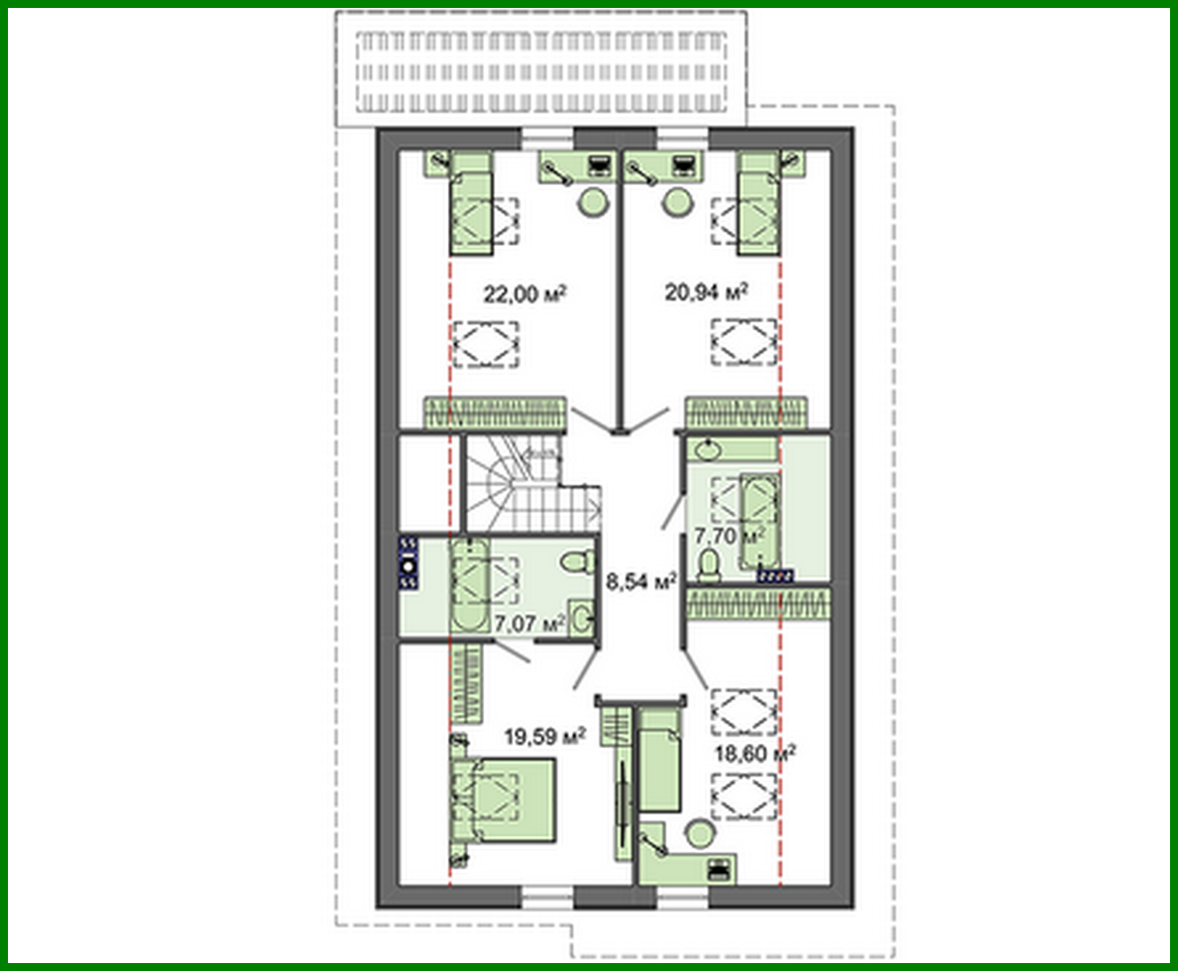
Modern project of a house with an attic for a narrow plot Número de plantas: 2 Área total: 212.77 m2 Área habitable: 130.80 m2 Altura de la casa: 8.09 m Altura del techo: 2.80 m Ángulo del techo: 43 ° Área del techo: 212.00 m2 Número de dormitorios: 4 Número de baños: 3 Garaje: Garage for one car Tamaño mínimo del terreno (largo): 24.00 m Tamaño mínimo del terreno (ancho): 17.00 m Área construida: 174.71 m2 Materiales: Paredes: aerated concrete blocks Overlap: monolithic overlap Roofing: metal tile, ceramic tile, bitumen Foundation: monolithic tape band

¿Te interesa este plano?

Contáctanos para obtener los planos completos, un presupuesto de construcción o adaptar este diseño a tu terreno y necesidades.

Solicitar más información

Galería de visualizaciones