Proyecto de una casa de campo con ático y garaje para un coche

149 m² de área total / 1604 ft² 1 piso 4 dormitorios 2 baños
Proyecto de una casa de campo con ático y garaje para un coche
Click to view

Descripción

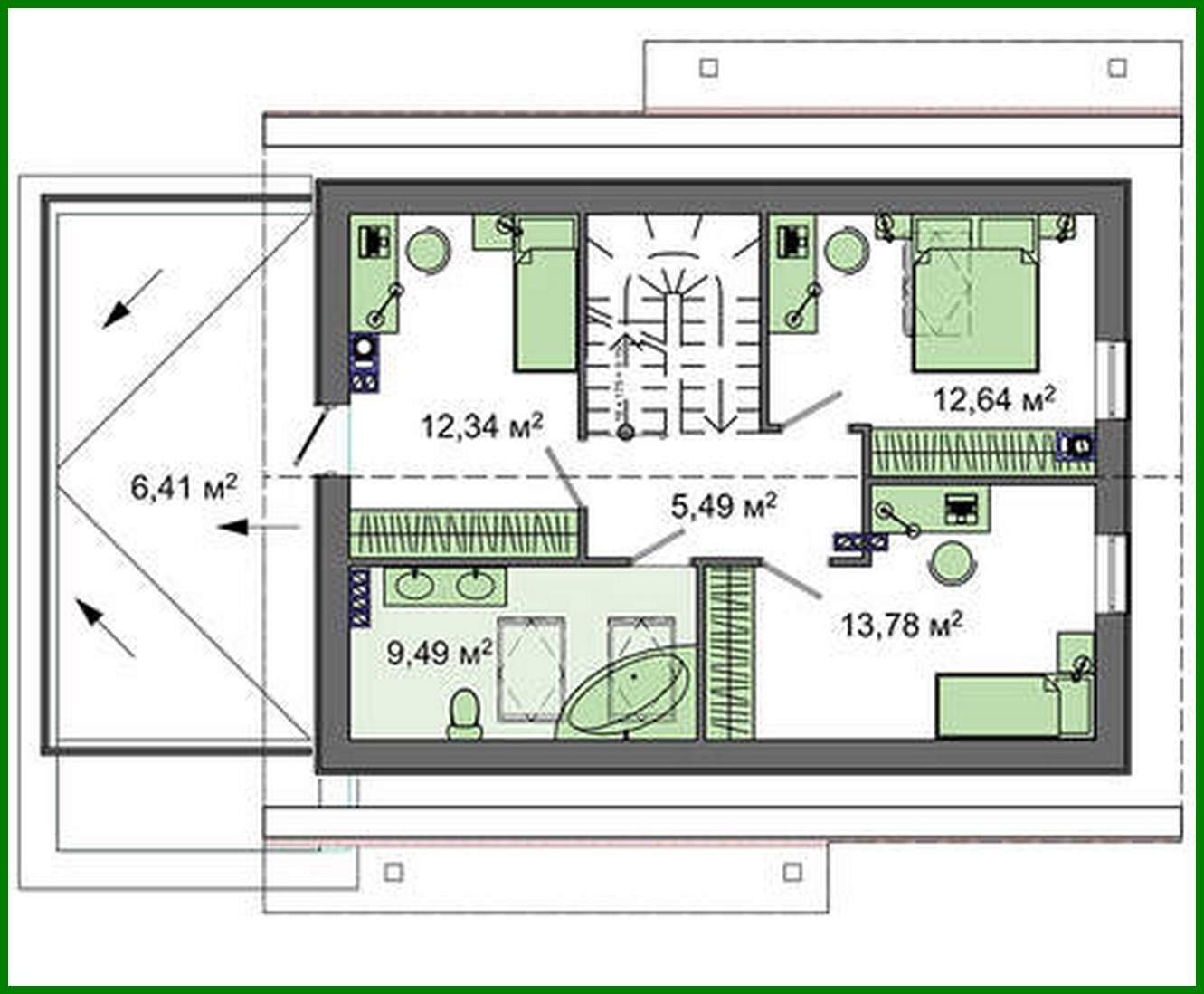
366. Project of a cottage with an attic with a garage for one car Número de plantas: 2 Área total: 148.81 m2 Área habitable: 68.72 m2 Altura de la casa: 7.55 m Altura del techo: 2.80 m Ángulo del techo: 35 ° Área del techo: 123.20 m2 Volumen: 344.00 m3 Número de dormitorios: 4 Número de baños: 2 Garaje: Garage for one car Tamaño mínimo del terreno (largo): 17.20 m Tamaño mínimo del terreno (ancho): 22.20 m Área construida: 154.1 m2 Materiales: Paredes: aerated concrete blocks Overlap: monolithic overlap Roofing: metal tile, ceramic tile, bitumen Foundation: monolithic tape

¿Te interesa este plano?

Contáctanos para obtener los planos completos, un presupuesto de construcción o adaptar este diseño a tu terreno y necesidades.

Solicitar más información

Galería de visualizaciones