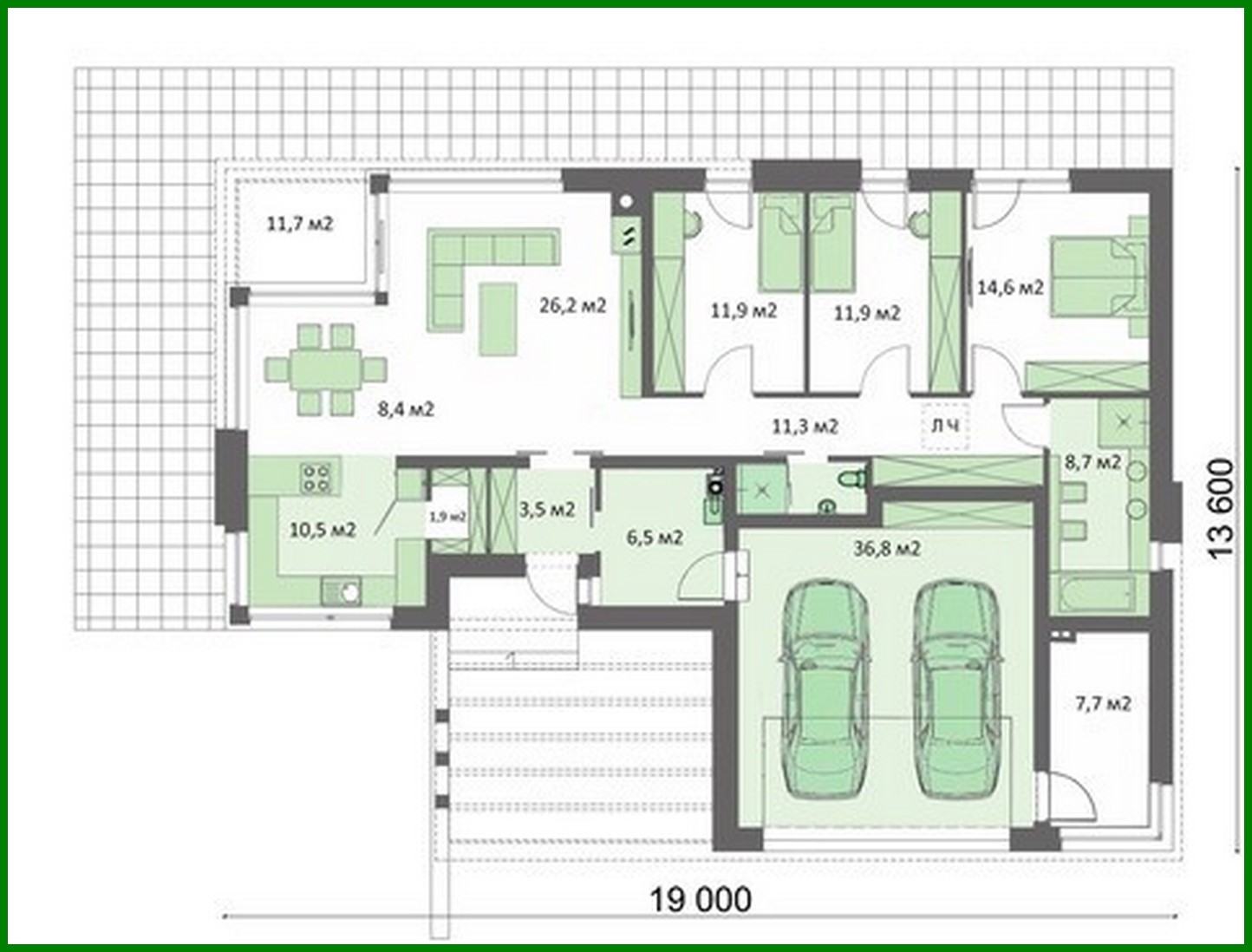
Mansión moderna de una planta con garaje para dos coches

206 m² de área total / 2217 ft² 1 piso 3 dormitorios 2 baños
Mansión moderna de una planta con garaje para dos coches
Click to view

Descripción

Modern one-story mansion with a garage for two cars Número de plantas: 1 Área total: 205.98 m2 Área habitable: 125.80 m2 Altura de la casa: 6.92 m Altura del techo: 2.80 m Ángulo del techo: 30 ° Área del techo: 322.00 m2 Volumen: 1110.00 m3 Número de dormitorios: 3 Número de baños: 2 Garaje: Two-car garage Tamaño mínimo del terreno (largo): 18.50 m Tamaño mínimo del terreno (ancho): 24.00 m Área construida: 205.98 m2 Materiales: Paredes: aerated concrete, ceramic blocks Techo: on wooden beams Roofing: ceramic tile, metal tile, cement-sand tile Foundation: monolithic tape

¿Te interesa este plano?

Contáctanos para obtener los planos completos, un presupuesto de construcción o adaptar este diseño a tu terreno y necesidades.

Solicitar más información

Galería de visualizaciones