Amplia y hermosa casa con una acogedora zona de invitados

286 m² de área total / 3078 ft² 2 pisos 3 dormitorios 3 baños
Amplia y hermosa casa con una acogedora zona de invitados
Click to view

Descripción

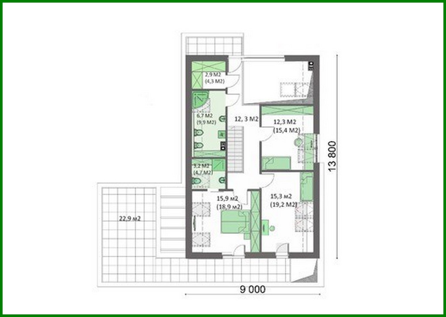
Spacious beautiful house with a cozy guest area Número de plantas: 2 Área total: 285.64 m2 Área habitable: 175.73 m2 Altura de la casa: 8.20 m Altura del techo: 2.80 m Ángulo del techo: 35 ° Área del techo: 188.00 m2 Volumen: 960.00 m3 Número de dormitorios: 3 Número de baños: 3 Garaje: Garage for one car Tamaño mínimo del terreno (largo): 20.00 m Tamaño mínimo del terreno (ancho): 22.00 m Área construida: 146.13 m2 Materiales: Paredes: aerated concrete, ceramic blocks Overlap: monolithic overlap Roofing: rebate Foundation: monolithic tape

¿Te interesa este plano?

Contáctanos para obtener los planos completos, un presupuesto de construcción o adaptar este diseño a tu terreno y necesidades.

Solicitar más información

Galería de visualizaciones