Proyecto de casa con ático para un terreno estrecho

159 m² de área total / 1711 ft² 1 piso 4 dormitorios 3 baños
Proyecto de casa con ático para un terreno estrecho
Click to view

Descripción

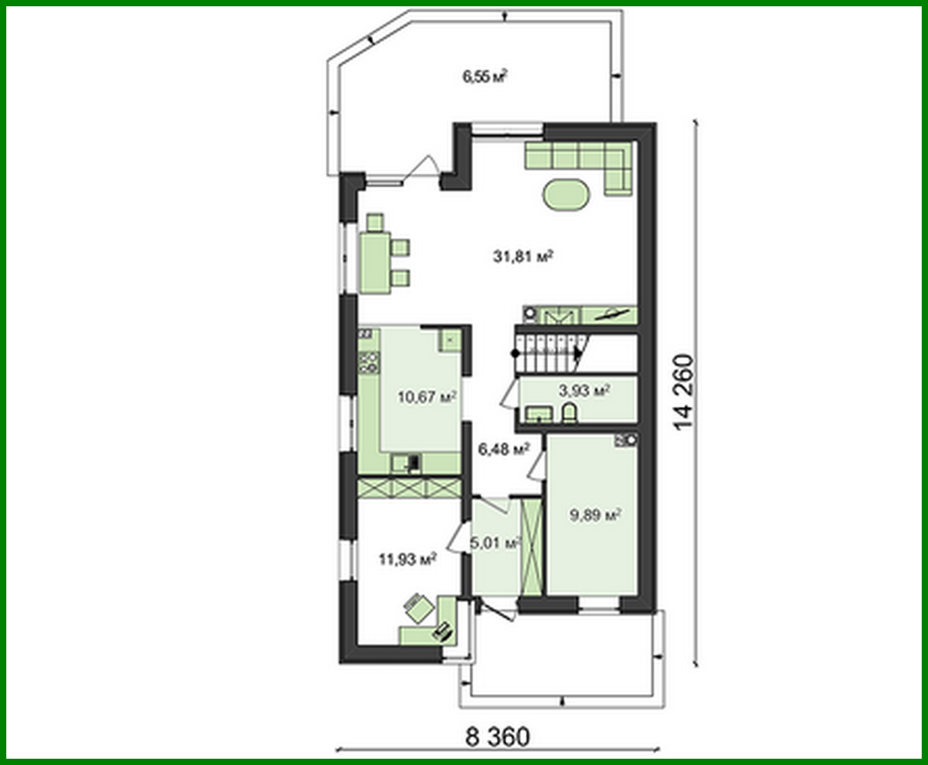
Project of a house with an attic for a narrow plot Número de plantas: 2 Área total: 158.85 m2 Área habitable: 91.29 m2 Altura de la casa: 7.62 m Altura del techo: 2.80 m Ángulo del techo: 35 ° Área del techo: 152.88 m2 Volumen: 305.00 m3 Número de dormitorios: 4 Número de baños: 3 Tamaño mínimo del terreno (largo): 21.00 m Tamaño mínimo del terreno (ancho): 15.00 m Área construida: 147.64 m2 Materiales: Paredes: aerated concrete blocks Overlap: monolithic overlap Roofing: metal tile, ceramic tile, bitumen Foundation: monolithic tape

¿Te interesa este plano?

Contáctanos para obtener los planos completos, un presupuesto de construcción o adaptar este diseño a tu terreno y necesidades.

Solicitar más información

Galería de visualizaciones