Proyecto de una pequeña casa de campo con ático

87 m² de área total / 936 ft² 1 piso 2 dormitorios 2 baños
Proyecto de una pequeña casa de campo con ático
Click to view

Descripción

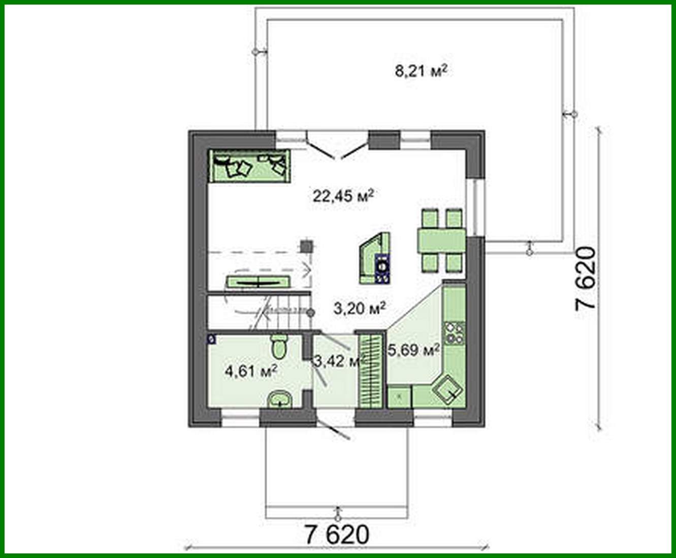
The project of a small country house with an attic Número de plantas: 2 Área total: 87.35 m2 Área habitable: 44.47 m2 Altura de la casa: 7.92 m Altura del techo: 2.80 m Ángulo del techo: 40 ° Área del techo: 81.50 m2 Volumen: 192.00 m3 Número de dormitorios: 2 Número de baños: 2 Tamaño mínimo del terreno (largo): 15.44 m Tamaño mínimo del terreno (ancho): 14.44 m Área construida: 100.07 m2 Materiales: Paredes: aerated concrete blocks Overlap: monolithic overlap Roofing: metal tile, ceramic tile, bitumen Foundation: monolithic tape band

¿Te interesa este plano?

Contáctanos para obtener los planos completos, un presupuesto de construcción o adaptar este diseño a tu terreno y necesidades.

Solicitar más información

Galería de visualizaciones