Proyecto de casa de verano

96 m² de área total / 1033 ft² 1 piso 4 dormitorios 2 baños
Proyecto de casa de verano
Click to view

Descripción

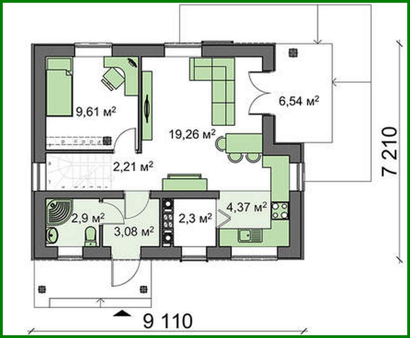
The project of the summer house Número de plantas: 2 Área total: 95.60 m2 Área habitable: 61.98 m2 Altura de la casa: 7.34 m Altura del techo: 2.80 m Ángulo del techo: 40 ° Área del techo: 122.04 m2 Volumen: 213.00 m3 Número de dormitorios: 4 Número de baños: 2 Tamaño mínimo del terreno (largo): 15.08 m Tamaño mínimo del terreno (ancho): 16.88 m Área construida: 90.77 m2 SIZES OF ROOMS Materiales: Paredes: aerated concrete blocks Overlap: monolithic overlap Roofing: metal tile, ceramic tile, bitumen Foundation: monolithic tape

¿Te interesa este plano?

Contáctanos para obtener los planos completos, un presupuesto de construcción o adaptar este diseño a tu terreno y necesidades.

Solicitar más información

Galería de visualizaciones