Proyecto de casa con ático y garaje

224 m² de área total / 2411 ft² 1 piso dormitorios
Proyecto de casa con ático y garaje
Click to view

Descripción

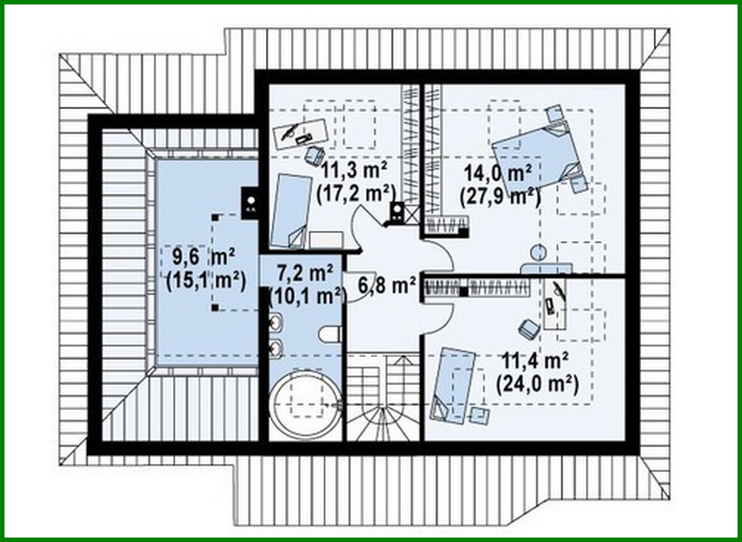
House project with attic and garage Número de plantas: 2 Área total: 224.00 m2 Área habitable: 157.80 m2 Altura de la casa: 7.40 m Altura del techo: 2.80 m Ángulo del techo: 32 ° Área del techo: 227.00 m2 Volumen: 529.00 m3 Garaje: Garage for one car Tamaño mínimo del terreno (largo): 21.89 m Tamaño mínimo del terreno (ancho): 16.39 m Materiales: Paredes: aerated concrete, ceramic blocks Overlap: monolithic overlap Roofing: metal tile, ceramic tile, bitumen Foundation: monolithic tape

¿Te interesa este plano?

Contáctanos para obtener los planos completos, un presupuesto de construcción o adaptar este diseño a tu terreno y necesidades.

Solicitar más información

Galería de visualizaciones