Diseño de una casa moderna y elegante

299 m² de área total / 3218 ft² 2 pisos 4 dormitorios 3 baños
Diseño de una casa moderna y elegante
Click to view

Descripción

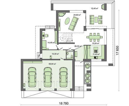
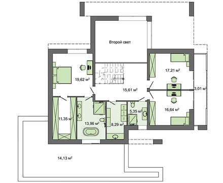
Design of a modern stylish house Número de plantas: 2 Área total: 299.34 m2 Área habitable: 92.78 m2 Altura de la casa: 7.90 m Altura del techo: 2.80 m Ángulo del techo: 1.5 ° Área del techo: 214.08 m2 Volumen: 1413.80 m3 Número de dormitorios: 4 Número de baños: 3 Garaje: Garage for three cars Tamaño mínimo del terreno (largo): 27.00 m Tamaño mínimo del terreno (ancho): 26.50 m Área construida: 231.84 m2 Materiales: Paredes: aerated concrete, ceramic blocks Overlap: monolithic overlap Roofing: PVC membrane Foundation: monolithic tape

¿Te interesa este plano?

Contáctanos para obtener los planos completos, un presupuesto de construcción o adaptar este diseño a tu terreno y necesidades.

Solicitar más información

Galería de visualizaciones