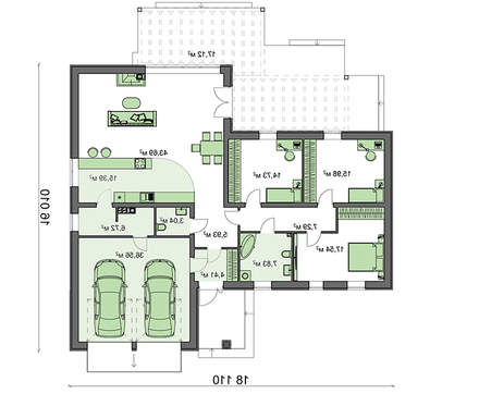
Proyecto de casa de una planta con garaje frontal para dos coches

196 m² de área total / 2110 ft² 1 piso 3 dormitorios 2 baños
Proyecto de casa de una planta con garaje frontal para dos coches
Click to view

Descripción

The project of a one-story cottage with a frontal garage for two cars Número de plantas: 1 Área total: 196.23 m2 Área habitable: 91.94 m2 Altura de la casa: 6.24 m Altura del techo: 2.80 m Ángulo del techo: 30 ° Área del techo: 331.00 m2 Volumen: 301.00 m3 Número de dormitorios: 3 Número de baños: 2 Garaje: Two-car garage Tamaño mínimo del terreno (largo): 23.00 m Tamaño mínimo del terreno (ancho): 24.00 m Área construida: 291.9 m2 Materiales: Paredes: aerated concrete blocks Overlap: floor slabs Roofing: metal tile, ceramic tile, bitumen Foundation: monolithic tape

¿Te interesa este plano?

Contáctanos para obtener los planos completos, un presupuesto de construcción o adaptar este diseño a tu terreno y necesidades.

Solicitar más información

Galería de visualizaciones