Proyecto de casa tipo chalet

283 m² de área total / 3046 ft² 2 pisos 4 dormitorios 3 baños
Proyecto de casa tipo chalet
Click to view

Descripción

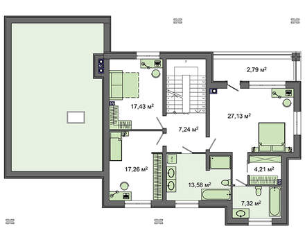
Chalet-style cottage project Número de plantas: 2 Área total: 282.60 m2 Área habitable: 108.86 m2 Altura de la casa: 9.52 m Altura del techo: 2.80 m Ángulo del techo: 22/16 ° Área del techo: 397.00 m2 Número de dormitorios: 4 Número de baños: 3 Garaje: Two-car garage Tamaño mínimo del terreno (largo): 29.00 m Tamaño mínimo del terreno (ancho): 19.50 m Área construida: 337.53 m2 Materiales: Paredes: aerated concrete blocks Overlap: monolithic overlap Roofing: metal tile, ceramic tile, bitumen Foundation: monolithic tape band

¿Te interesa este plano?

Contáctanos para obtener los planos completos, un presupuesto de construcción o adaptar este diseño a tu terreno y necesidades.

Solicitar más información

Galería de visualizaciones