Proyecto de una mansión de cuatro plantas

512 m² de área total / 5511 ft² 4 pisos 5 dormitorios 4 baños
Proyecto de una mansión de cuatro plantas
Click to view

Descripción

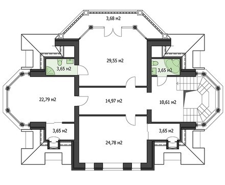
The project of a four-story mansion Número de plantas: 4 Área total: 512.14 m2 Área habitable: 268.42 m2 Altura de la casa: 11.46 m Altura del techo: 3.00 m Ángulo del techo: 15 ° Área del techo: 241.00 m2 Número de dormitorios: 5 Número de baños: 4 Tamaño mínimo del terreno (largo): 27.50 m Tamaño mínimo del terreno (ancho): 22.50 m Área construida: 259 m2 Área de la planta baja: 71.13 m2 Materiales: Paredes: ceramic blocks Overlap: monolithic overlap Roof: shingles Foundation: monolithic tape

¿Te interesa este plano?

Contáctanos para obtener los planos completos, un presupuesto de construcción o adaptar este diseño a tu terreno y necesidades.

Solicitar más información

Galería de visualizaciones