Casa de campo de dos plantas con grandes ventanales panorámicos y amplia terraza

170 m² de área total / 1830 ft² 2 pisos 3 dormitorios 2 baños
Casa de campo de dos plantas con grandes ventanales panorámicos y amplia terraza
Click to view

Descripción

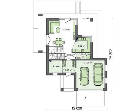
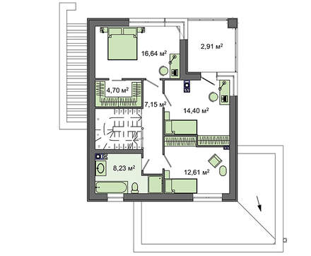
Two-storey cottage with large panoramic windows and a spacious terrace Número de plantas: 2 Área total: 169.89 m2 Área habitable: 74.95 m2 Altura de la casa: 8.80 m Altura del techo: 2.80 m Ángulo del techo: 20 ° Área del techo: 158.00 m2 Volumen: 398.00 m3 Número de dormitorios: 3 Número de baños: 2 Garaje: Two-car garage Tamaño mínimo del terreno (largo): 18.66 m Tamaño mínimo del terreno (ancho): 20.86 m Área construida: 226.6 m2 Materiales: Paredes: aerated concrete blocks Overlap: monolithic overlap Roofing: metal tile, ceramic tile, bitumen Foundation: monolithic tape

¿Te interesa este plano?

Contáctanos para obtener los planos completos, un presupuesto de construcción o adaptar este diseño a tu terreno y necesidades.

Solicitar más información

Galería de visualizaciones