Proyecto de una pequeña casa de campo de una planta

73 m² de área total / 786 ft² 1 piso 2 dormitorios 1 baño
Proyecto de una pequeña casa de campo de una planta
Click to view

Descripción

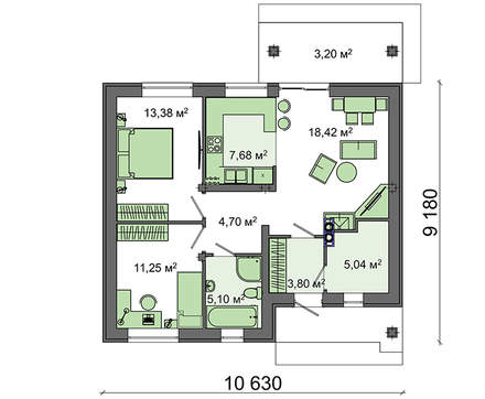
The project of a small one-story cottage Número de plantas: 1 Área total: 72.57 m2 Área habitable: 43.05 m2 Altura de la casa: 5.93 m Altura del techo: 2.80 m Ángulo del techo: 25 ° Área del techo: 143.50 m2 Volumen: 185.00 m3 Número de dormitorios: 2 Número de baños: 1 Tamaño mínimo del terreno (largo): 16.88 m Tamaño mínimo del terreno (ancho): 16.38 m Área construida: 117.5 m2 Materiales: Paredes: aerated concrete blocks Techo: on wooden beams Roofing: metal tile, ceramic tile, bitumen Foundation: monolithic tape

¿Te interesa este plano?

Contáctanos para obtener los planos completos, un presupuesto de construcción o adaptar este diseño a tu terreno y necesidades.

Solicitar más información

Galería de visualizaciones