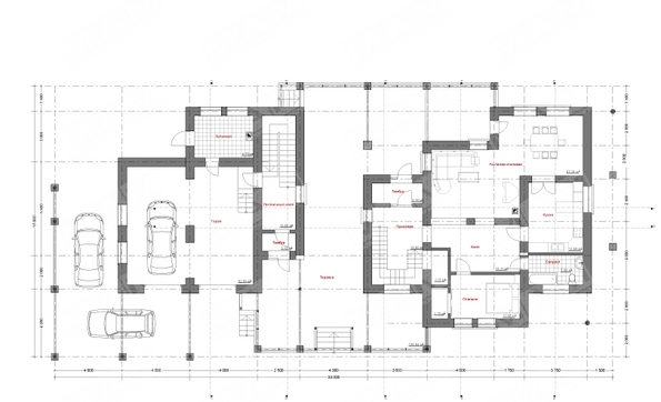
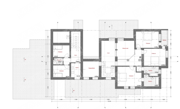
Proyecto arquitectónico de una enorme casa de campo

443 m² de área total / 4768 ft² 2 pisos 6 dormitorios 4 baños
Proyecto arquitectónico de una enorme casa de campo
Click to view

Descripción

The architectural project of a huge country house Número de plantas: 2 Área total: 443.10 m2 Altura del techo: 2.80 m Número de dormitorios: 6 Número de baños: 4 Garaje: Two-car garage Tamaño mínimo del terreno (largo): 20.00 m Tamaño mínimo del terreno (ancho): 37.00 m Materiales: Paredes: aerated concrete, ceramic blocks Overlap: monolithic overlap Roofing: metal tile, ceramic tile, bitumen Foundation: monolithic tape

¿Te interesa este plano?

Contáctanos para obtener los planos completos, un presupuesto de construcción o adaptar este diseño a tu terreno y necesidades.

Solicitar más información

Galería de visualizaciones