Proyecto de cómoda casa de campo con garaje para dos familias

246 m² de área total / 2648 ft² 2 pisos 4 dormitorios 3 baños
Proyecto de cómoda casa de campo con garaje para dos familias
Click to view

Descripción

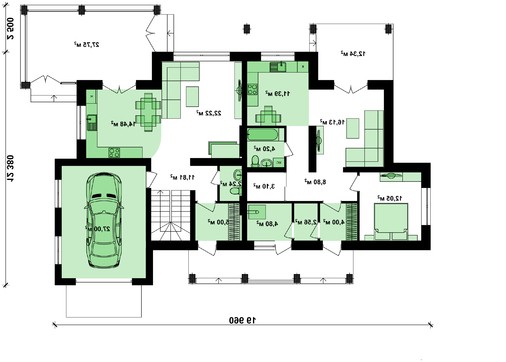
A project of a comfortable country cottage with a garage for two families Número de plantas: 2 Área total: 246.00 m2 Área habitable: 106.00 m2 Altura de la casa: 8.00 m Altura del techo: 2.80 m Ángulo del techo: 20 ° Número de dormitorios: 4 Número de baños: 3 Garaje: Garage for one car Tamaño mínimo del terreno (largo): 27.96 m Tamaño mínimo del terreno (ancho): 26.38 m Materiales: Paredes: aerated concrete, ceramic blocks Overlap: monolithic overlap Roofing: ceramic tile, metal tile, cement-sand tile Foundation: monolithic tape band

¿Te interesa este plano?

Contáctanos para obtener los planos completos, un presupuesto de construcción o adaptar este diseño a tu terreno y necesidades.

Solicitar más información

Galería de visualizaciones