Proyecto de casa de campo clásica

140 m² de área total / 1507 ft² 1 piso 3 dormitorios 2 baños
Proyecto de casa de campo clásica
Click to view

Descripción

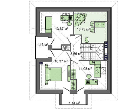
Classic Cottage Project Número de plantas: 2 Área total: 140.35 m2 Área habitable: 79.75 m2 Altura de la casa: 7.77 m Altura del techo: 2.80 m Ángulo del techo: 37 ° ° Área del techo: 150.50 m2 Volumen: 307.00 m3 Número de dormitorios: 3 Número de baños: 2 Tamaño mínimo del terreno (largo): 16.94 m Tamaño mínimo del terreno (ancho): 18.14 m Materiales: Paredes: aerated concrete blocks Overlap: monolithic overlap Roofing: ceramic tile, metal tile, cement-sand tile Foundation: monolithic tape

¿Te interesa este plano?

Contáctanos para obtener los planos completos, un presupuesto de construcción o adaptar este diseño a tu terreno y necesidades.

Solicitar más información

Galería de visualizaciones