Lujoso edificio de apartamentos en colores vivos

249 m² de área total / 2680 ft² 2 pisos 4 dormitorios 2 baños
Lujoso edificio de apartamentos en colores vivos
Click to view

Descripción

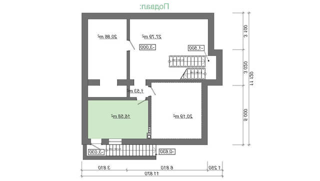
Luxurious apartment building in bright colors Número de plantas: 3 Área total: 248.52 m2 Área habitable: 84.50 m2 Altura de la casa: 7.51 m Altura del techo: 2.80 m Ángulo del techo: 30 ° Área del techo: 160.00 m2 Número de dormitorios: 4 Número de baños: 2 Tamaño mínimo del terreno (largo): 16.00 m Tamaño mínimo del terreno (ancho): 16.00 m Área construida: 138.8 m2 Área de la planta baja: 86.95 m2 Materiales: Paredes: ceramic blocks Overlap: monolithic overlap Roof: shingles Foundation: monolithic slab

¿Te interesa este plano?

Contáctanos para obtener los planos completos, un presupuesto de construcción o adaptar este diseño a tu terreno y necesidades.

Solicitar más información

Galería de visualizaciones