Casa de dos plantas con balcones para un terreno estrecho

126 m² de área total / 1356 ft² 1 piso 3 dormitorios 2 baños
Casa de dos plantas con balcones para un terreno estrecho
Click to view

Descripción

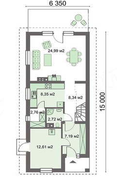
Two-story house with balconies for a narrow plot Número de plantas: 2 Área total: 125.56 m2 Área habitable: 103.84 m2 Altura de la casa: 7.10 m Altura del techo: 2.80 m Ángulo del techo: 35 ° Área del techo: 142.00 m2 Volumen: 535.99 m3 Número de dormitorios: 3 Número de baños: 2 Tamaño mínimo del terreno (largo): 23.00 m Tamaño mínimo del terreno (ancho): 14.35 m Área construida: 94.08 m2 Materiales: Paredes: aerated concrete, ceramic blocks Overlap: monolithic overlap Roofing: rebate Foundation: monolithic tape

¿Te interesa este plano?

Contáctanos para obtener los planos completos, un presupuesto de construcción o adaptar este diseño a tu terreno y necesidades.

Solicitar más información

Galería de visualizaciones