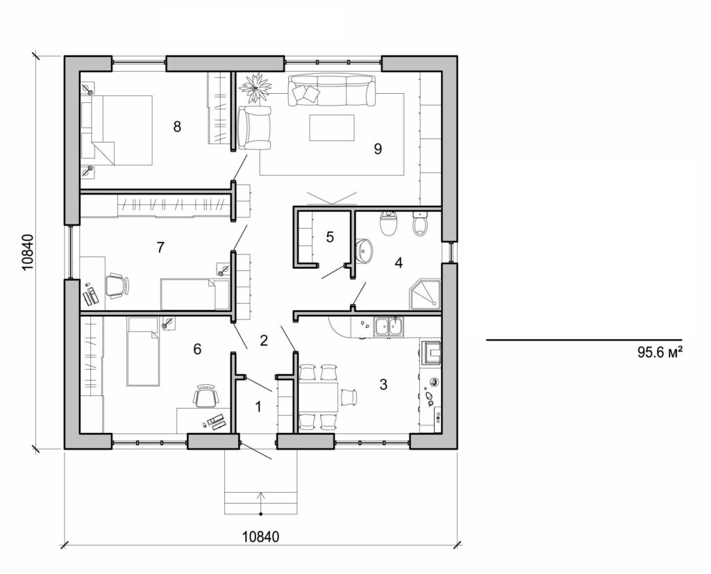
Casa pequeña de una planta

96 m² de área total / 1033 ft² 1 piso dormitorios
Casa pequeña de una planta
Click to view

¿Te interesa este plano?

Contáctanos para obtener los planos completos, un presupuesto de construcción o adaptar este diseño a tu terreno y necesidades.

Solicitar más información

Galería de visualizaciones