Hermosa casa de campo

188 m² de área total / 2024 ft² 1 piso 4 dormitorios 3 baños
Hermosa casa de campo
Click to view

Descripción

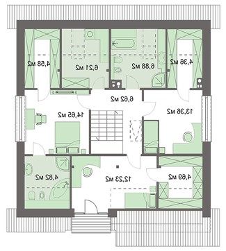
Beautiful country house<br data-rich-text-line-break="true" />Número de plantas: 2<br data-rich-text-line-break="true" />Área total: 187.58 m2<br data-rich-text-line-break="true" />Área habitable: 104.90 m2<br data-rich-text-line-break="true" />Altura de la casa: 9.32 m<br data-rich-text-line-break="true" />Altura del techo: 2.80 m<br data-rich-text-line-break="true" />Ángulo del techo: 40 °<br data-rich-text-line-break="true" />Área del techo: 244.00 m2<br data-rich-text-line-break="true" />Número de dormitorios: 4<br data-rich-text-line-break="true" />Número de baños: 3<br data-rich-text-line-break="true" />Garaje: Two-car garage<br data-rich-text-line-break="true" />Tamaño mínimo del terreno (largo): 20.50 m<br data-rich-text-line-break="true" />Tamaño mínimo del terreno (ancho): 20.20 m<br data-rich-text-line-break="true" />Materiales:<br data-rich-text-line-break="true" />Paredes: aerated concrete, ceramic blocks<br data-rich-text-line-break="true" />Overlap: monolithic overlap<br data-rich-text-line-break="true" />Roofing: ceramic tile, metal tile, cement-sand tile<br data-rich-text-line-break="true" />Foundation: monolithic tape

¿Te interesa este plano?

Contáctanos para obtener los planos completos, un presupuesto de construcción o adaptar este diseño a tu terreno y necesidades.

Solicitar más información

Galería de visualizaciones