Proyecto de elegante mansión con superficie habitable de 180 m²

187 m² de área total / 2013 ft² 2 pisos 5 dormitorios 3 baños
Proyecto de elegante mansión con superficie habitable de 180 m²
Click to view

Descripción

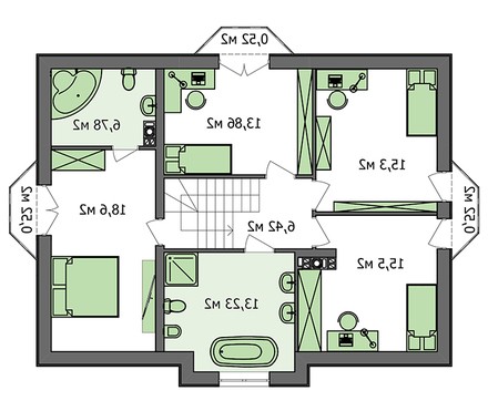
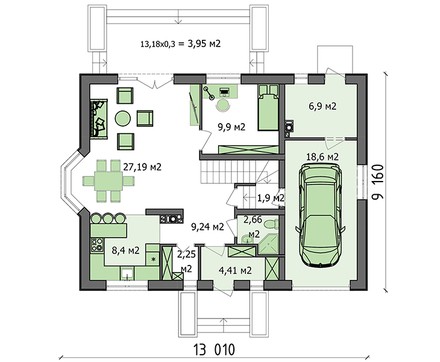
The project of a stylish elegant mansion with a living area of ​​180m2 Número de plantas: 2 Área total: 186.65 m2 Área habitable: 100.35 m2 Altura de la casa: 8.35 m Altura del techo: 2.80 m Ángulo del techo: 40 ° Área del techo: 211.00 m2 Volumen: 725.00 m3 Número de dormitorios: 5 Número de baños: 3 Garaje: Garage for one car Tamaño mínimo del terreno (largo): 21.00 m Tamaño mínimo del terreno (ancho): 17.80 m Área construida: 144.17 m2 Materiales: Paredes: aerated concrete, ceramic blocks Overlap: monolithic overlap Roofing: ceramic tile, metal tile, cement-sand tile Foundation: monolithic tape

¿Te interesa este plano?

Contáctanos para obtener los planos completos, un presupuesto de construcción o adaptar este diseño a tu terreno y necesidades.

Solicitar más información

Galería de visualizaciones