Proyecto de casa clásica de bajo consumo con ático

155 m² de área total / 1668 ft² 1 piso 5 dormitorios 3 baños
Proyecto de casa clásica de bajo consumo con ático
Click to view

Descripción

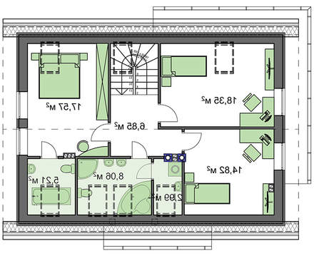
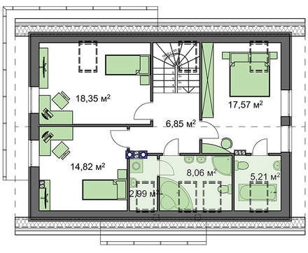
The project of an energy-saving classic house with an attic Número de plantas: 2 Área total: 155.10 m2 Área habitable: 94.31 m2 Altura de la casa: 7.53 m Altura del techo: 2.80 m Ángulo del techo: 35 ° Área del techo: 145.00 m2 Volumen: 354.00 m3 Número de dormitorios: 5 Número de baños: 3 Tamaño mínimo del terreno (largo): 16.34 m Tamaño mínimo del terreno (ancho): 19.64 m Área construida: 94 m2 Materiales: Paredes: aerated concrete blocks Overlap: monolithic overlap Roofing: metal tile, ceramic tile, bitumen Foundation: monolithic tape

¿Te interesa este plano?

Contáctanos para obtener los planos completos, un presupuesto de construcción o adaptar este diseño a tu terreno y necesidades.

Solicitar más información

Galería de visualizaciones